154 200 Р /в месяц

Информация об помещении

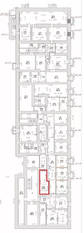
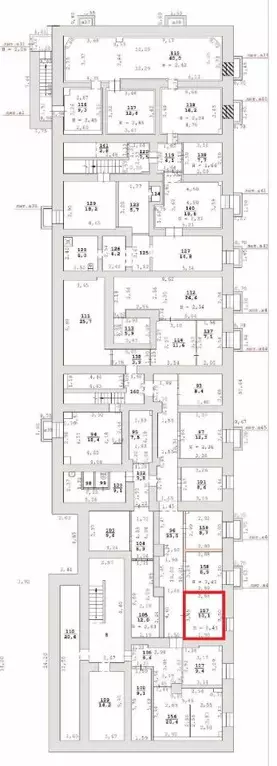
342.7 м2
Площадь
1
Этаж

Состояние и оснащение

Общая площадь складского комплекса, м2
342.7
Развернуть
Агент
Милосердов Олег Игоревич
+7 (491) 246-65-26
Начать чат с агентом

Аренда ПСН, Рыбное, Рыбновский район, ул. Веселая

Код объекта: 2047421.Сдается в аренду первый этаж отдельно стоящего нежилого 2-х этажного здания, свободного назначения. Площадь в аренду 342,7 кв.м.Адрес: Рязанская область, г. Рыбное, ул. Весёлая, 20Г (координаты Яндекс 54.735823, 39.481280)Есть парковка рядом с зданием, возможность погрузки-разгрузки товара.Планировка этажа свободная, 2 отдельных входа потолки 3 м, хороший ремонт.Коммуникации: индивидуальное отопление, эл. мощность 30 кВт, интернет, ОПС, ХВС, видеонаблюдение.Рядом расположены: действующие магазины и офисы, напротив здания - остановка общественного транспорта следующих маршрутов: автобусы: 129, 132, маршрутки: 1, 102, 104, 105, 106, 107, 108, 110, 144, 153, 241. Возможные назначения: магазин, офис, мед. центр, обучающий центр, ПВЗ, салон, ателье, спорт, склад и другие.Можно снять в аренду всё помещение, а также часть помещения, условия договорные, 2-й этаж используется собственником.

Читать полностью

    Для того, чтобы снять ПСН площадью 342 кв. метра по адресу: Рыбное, ул. Веселая, 20Г, позвоните по телефону +7 (491) 246-65-26. Торопитесь! Объявление №901104089 об аренде ПСН площадью 342 кв. метра опубликовано Вчера.

    Позвонить Написать
    154 200 Р /в месяц
    Агент
    Милосердов Олег Игоревич
    +7 (491) 246-65-26
    Начать чат с агентом
    Похожие предложения
    Аренда ПСН, Рыбное, Рыбновский район, Перспективная улица - Фото 1
    Аренда ПСН, Рыбное, Рыбновский район, Перспективная улица - Фото 2
    Аренда ПСН, Рыбное, Рыбновский район, Перспективная улица - Фото 3
    Аренда ПСН, Рыбное, Рыбновский район, Перспективная улица - Фото 4
    Аренда ПСН, Рыбное, Рыбновский район, Перспективная улица - Фото 5
    Аренда ПСН, Рыбное, Рыбновский район, Перспективная улица - Фото 6
    Аренда ПСН, Рыбное, Рыбновский район, Перспективная улица - Фото 7
    Аренда ПСН, Рыбное, Рыбновский район, Перспективная улица - Фото 8
    Аренда ПСН, Рыбное, Рыбновский район, Перспективная улица - Фото 9
    Аренда ПСН, Рыбное, Рыбновский район, Перспективная улица - Фото 10
    Аренда ПСН, Рыбное, Рыбновский район, Перспективная улица - Фото 11
    Аренда ПСН, Рыбное, Рыбновский район, Перспективная улица - Фото 12
    Аренда ПСН, Рыбное, Рыбновский район, Перспективная улица - Фото 13
    Аренда ПСН, Рыбное, Рыбновский район, Перспективная улица - Фото 14
    Аренда ПСН, Рыбное, Рыбновский район, Перспективная улица - Фото 15
    Аренда ПСН, Рыбное, Рыбновский район, Перспективная улица - Фото 16
    Аренда ПСН, Рыбное, Рыбновский район, Перспективная улица - Фото 17
    общая площадь 112м², полезная площадь 112м²

    Код объекта: 2054092.Предлагаем к аренде коммерческое помещение свободного назначения по адресу: Россия, Рязанская область, Рыбное, Перспективная улица, 6, ЖК Мега. Этот объект идеально подойдёт молодым специалистам и бизнес-профессионалам, которые ценят...
    • 112 м²
    50 000 Р /в месяц
    Агент
    +7 (491) Показать номер
    Посмотреть контакты
    Помещение свободного назначения в Волгоградская область, Михайловка ... - Фото 1
    Помещение свободного назначения в Волгоградская область, Михайловка ... - Фото 2
    Данные получены с сайта ГИС Торги.Нежилое помещение общей площадью 16,2 кв. м, с кадастровым номером 34:37:010214:6218, расположенное на первом этаже многоквартирного жилого дома, по адресу: Волгоградская область, г. Михайловка, ул. Обороны, дом 65...
    5 378 Р
    Агент
    +7 (988) Показать номер
    Посмотреть контакты
    Помещение свободного назначения в Свердловская область, Екатеринбург ... - Фото 1
    Помещение свободного назначения в Свердловская область, Екатеринбург ... - Фото 2
    Данные получены с сайта ГИС Торги.Подвал; без отдельного входа; элементы благоустройства (водоснабжение, водоотведение) в местах общего пользования помещ. 98-100.
    • 5 этажей
    5 494 Р
    Агент
    +7 (982) Показать номер
    Посмотреть контакты
    Помещение свободного назначения в Свердловская область, Екатеринбург ... - Фото 1
    Помещение свободного назначения в Свердловская область, Екатеринбург ... - Фото 2
    Данные получены с сайта ГИС Торги.Подвал; без отдельного входа; элементы благоустройства (водоснабжение, водоотведение) в местах общего пользования помещ. 98-100.
    • 5 этажей
    5 424 Р
    Агент
    +7 (982) Показать номер
    Посмотреть контакты
    Аренда ПСН, Огуднево, Щелковский район, деревня Огуднево - Фото 1
    Аренда ПСН, Огуднево, Щелковский район, деревня Огуднево - Фото 2
    общая площадь 1000м², полезная площадь 1000м²

    50:14:0020316:1079 Земли населённых пунктов 6 807 кв. мкадастровая стоимость:,Разрешенное использование:Для размещения производственных зданий50:14:0020316:1103категория земель:Земли населённых пунктов 1 190 кв. мкадастровая стоимость:,Разрешенное использование:Для...
    • 1 000 м²
    • 1-й эт.
    450 000 Р /в месяц
    Агент
    +7 (926) Показать номер
    Посмотреть контакты

    Не нашли подходящего объявления?

    Оставьте заявку, и наши риэлторы подберут псн в районе Рыбного

    (0)