250 000 Р 3 220 $ или 2 770

Информация об помещении

1
Этаж

Состояние и оснащение

Количество этажей
1
Развернуть
Агент
+7 (980) 562-90-57
Начать чат с агентом

Помещение свободного назначения в Рязанская область, Рыбное пл. ...

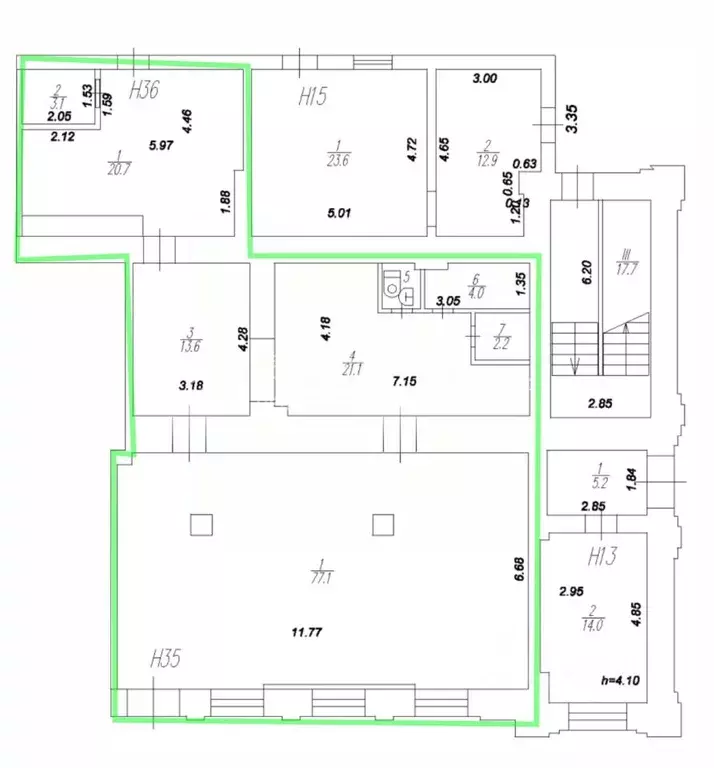
Код объекта: 1345076.Коммерческое помещение свободного назначения в Рыбном, площадь Ленина, 4.ПОМЕЩЕНИЕ НЕ СДАЁМ ПОД ПРОДУКТЫ И АЛКОГОЛЬ .Сдаётся в аренду коммерческое помещение площадью 475 кв. м. Высота потолков — 3 метра, что позволит эффективно использовать пространство и создать комфортные условия для работы. Выполнен косметический ремонт. Помещение имеет отдельный вход и находится на первом этаже кирпичного здания 1974 года постройки. Есть наземная парковка.Преимущества объекта: расположение в центре города; своя котельная, обеспечивающая теплоснабжение помещения; свободный доступ в помещение в любое удобное время; возможность использования под различные виды деятельности благодаря свободному назначению.Коммерческое помещение подойдёт для размещения магазина, офиса, склада и других объектов. Это идеальный вариант для тех, кто ищет просторное и функциональное помещение для бизнеса.Мощность 4,7 киловатт, кондиционеры, водонагреватель,зоны разгрузки, удобный подъезд фур, за отопление в месяц в районе.Гарантируем безопасную сделку и юридическую поддержку нашим клиентам. Не упустите свой шанс стать владельцем или арендатором этого уникального коммерческого помещения

Читать полностью
    Позвонить Написать
    250 000 Р3 220 $ или 2 770
    Агент
    +7 (980) 562-90-57
    Начать чат с агентом
    Похожие предложения
    Помещение свободного назначения в Рязанская область, Рязань ... - Фото 1
    Помещение свободного назначения в Рязанская область, Рязань ... - Фото 2
    Код объекта: 1671438.Сдается в аренду свободная площадь 400 кв.м на втором этаже в ТЦ Сити , адрес: Промышленная 34.Планировка свободная разделена на отдельные бутики по 30-50 кв.м. Снять можно как всю площадь, так и отдельные бутики по цене/кв.м. В...
    • 2/2 эт.
    260 000 Р
    Агент
    +7 (980) Показать номер
    Посмотреть контакты
    Помещение свободного назначения в Рязанская область, Рязань ... - Фото 1
    Помещение свободного назначения в Рязанская область, Рязань ... - Фото 2
    Код объекта: 1701336.Отличное предложение для аренды коммерческого помещения в РязаниАдрес и расположение:Куйбышевское шоссе, 47, Рязань. Отличное расположение для бизнеса: лёгкая доступность с основных магистралей, близость к ключевым точкам города....
    • 1/2 эт.
    240 000 Р
    Агент
    +7 (980) Показать номер
    Посмотреть контакты
    Помещение свободного назначения в Рязанская область, Рязань ... - Фото 1
    Помещение свободного назначения в Рязанская область, Рязань ... - Фото 2
    Код объекта: 1606289.Сдам помещение на Первомайском проспекте.Первая линия, витражные окна, высота потолка 3,5 м. Помещение в нежилом здании Два входа, разгрузка. За зданием есть парковочная зона.Рядом остановка общественного транспорта, Первомайский...
    • 1/5 эт.
    250 000 Р
    Агент
    +7 (980) Показать номер
    Посмотреть контакты
    Помещение свободного назначения в Рязанская область, Рязань ул. ... - Фото 1
    Помещение свободного назначения в Рязанская область, Рязань ул. ... - Фото 2
    ОТЛИЧНОЕ ПРЕДЛОЖЕНИЕ ПОД СЕТЕВОЙ МАГАЗИН РАССМАТРИВАЕМ АРЕНДАТОРОВ НА ДЛИТЕЛЬНЫЙ СРОК Сдам помещение в центре города (на улице Фирсова)Помещение свободной планировки порядка 185 кв.м. Есть санузел, подсобные помещения, входная группа, разгрузочно-погрузочная...
    • 1/1 эт.
    240 000 Р
    Агент
    +7 (910) Показать номер
    Посмотреть контакты
    Помещение свободного назначения в Рязанская область, Рязань Вокзальная ... - Фото 1
    Помещение свободного назначения в Рязанская область, Рязань Вокзальная ... - Фото 2
    Сдается помещение на первой линии Первомайского проспекта Отдельный вход. Помещение развернуто вдоль Проспекта Большие окна. Высокие потолки. Качественный ремонт. Высокий трафик Непосредственно у пешеходного перехода. Назначение свободное Арт.
    • -1/4 эт.
    255 000 Р
    Агент
    +7 (910) Показать номер
    Посмотреть контакты

    Не нашли подходящего объявления?

    Оставьте заявку, и наши риэлторы подберут псн в районе Рыбного

    (0)