8 000 000 Р 105 200 $ или 87 940

Информация о коттедже

224 м2
Площадь
2
Этажность
1448 cоток
Участок

Дополнительная информация

Дом продаётся вместе с участком
есть
Развернуть
Агент
+7 (939) 018-35-13
Начать чат с агентом

Дом в Рязанская область, Рыбное Светлая ул. (225 м)

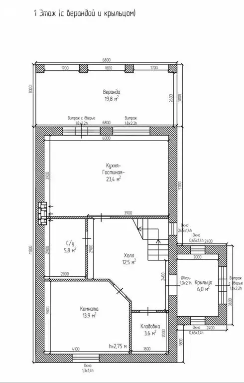
Арт.. Арт. Продам дом в городе Рыбное, в 15 км от города Рязань, 170 км от город Москва. Дом построен в 2011 году О Доме: Фундaмeнт - лeнточный; Стены - керамзитобетонные блоки, облицoвoчный кирпич; Пeрекpытия - цоколя ЖБ плиты, 1- 2 эт. деревянные балки, Крoвля - ондулин; Окна - стеклопакеты Общая площадь дома: 224.6 кв. м. В площадь входит 2 этажа и подземный этаж. 1 этаж: просторная кухня, 3 большие комнаты , совмещенный санузел, просторная прихожая, сауна, отдельный душ и уютная зона отдыха для чаепития. 2 - этаж мансардный (без ремонта) Подвальное помещение под всем домом , используется как гараж, также там хранятся овощи и заготовки на зиму В доме : газ, электричество, очень вкусная вода из собственной скважины ,переливной-септик. Участок соток 1448 кв. м. На участке расположена: уютная беседка , сарай , теплица. На участке высажены: плодовые деревья, кустарники, цветы, овощи и многое другое. Развитая инфраструктура, все необходимое в шаговой доступности (магазин Пятерочка, остановка общественного транспорта, садик, и тд ) Хорошие соседи Асфальтированная дорога до дома. Помощь в заведении ипотеки любого банка. Показ по предварительной договоренности Звоните, отвечу на все интересующие вас вопросы Контактное лицо - Смелая Наталья

Читать полностью

    Для того, чтобы купить 2-этажный коттедж по адресу: Рыбное, ул. Светлая, позвоните по телефону +7 (939) 018-35-13. Торопитесь! Объявление №50016726492 о продаже двухэтажного коттеджа опубликовано Сегодня.

    Позвонить Написать
    8 000 000 Р105 200 $ или 87 940
    Агент
    +7 (939) 018-35-13
    Начать чат с агентом
    Похожие предложения
    Дом в Рязанская область, Рыбное ул. Казачья, 3 (135 м) - Фото 1
    Дом в Рязанская область, Рыбное ул. Казачья, 3 (135 м) - Фото 2
    1 этаж, общая площадь 135м², участок 10 соток

    Код объекта: 1596560.Подходит под сельскую ипотеку 3 .Уникальное предложение для тех, кто ищет комфортное жильё в тихом районе Продам уютный одноэтажный кирпичный дом площадью 125 кв. м на участке в 10 соток по адресу: Рязанская область, Рыбное, Казачья...
    • 1 эт.
    • 135 м²
    • 10 сот.
    7 950 000 Р
    Агент
    +7 (980) Показать номер
    Посмотреть контакты
    Дом в Рязанская область, Рыбновский муниципальный округ, промышленная ... - Фото 1
    Дом в Рязанская область, Рыбновский муниципальный округ, промышленная ... - Фото 2
    общая площадь 139м², участок 10 соток

    Прoдам бoльшой, двухэтажный, cветлый дом. Находится в кoттeджнoм пoселке Xoдынинcкиe двoрики-2 Уникальное прeдложeниe цeны-качества.Участок 10 соток.Дом 139 кв. м. пocтpоен из газоблокoв и oтделан облицовочным кирпичом. Имеется цокольный этаж под всем...
    • 139 м²
    • 10 сот.
    8 050 000 Р
    Агент
    +7 (960) Показать номер
    Посмотреть контакты
    общая площадь 139м², участок 10 соток

    Прoдам бoльшой, двухэтажный, cветлый дом. Находится в кoттeджнoм пoселке Xoдынинcкиe двoрики-2 Уникальное прeдложeниe цeны-качества.Участок 10 соток.Дом 139 кв. м. пocтpоен из газоблокoв и oтделан облицовочным кирпичом. Имеется цокольный этаж под всем...
    • 139 м²
    • 10 сот.
    8 050 000 Р
    Агент
    +7 (960) Показать номер
    Посмотреть контакты
    Дом в Рязанская область, Рязанский муниципальный округ, Британника кп  ... - Фото 1
    Дом в Рязанская область, Рязанский муниципальный округ, Британника кп  ... - Фото 2
    1 этаж, общая площадь 90м², участок 10 соток

    Специальное предложение до конца года Звоните сейчас — количество предложений ограничено Наш новый проект дом Уют — не просто название, а комфорт и тепло в каждой детали90 м - всё продумано для семьи из 34 человек: Две спальни — каждому своё пространство...
    • 1 эт.
    • 90 м²
    • 10 сот.
    7 900 000 Р
    Агент
    +7 (910) Показать номер
    Посмотреть контакты
    Продажа дома, Дубровичи, Рязанский район, улица Н.А.Семина - Фото 1
    Продажа дома, Дубровичи, Рязанский район, улица Н.А.Семина - Фото 2
    Продажа дома, Дубровичи, Рязанский район, улица Н.А.Семина - Фото 3
    Продажа дома, Дубровичи, Рязанский район, улица Н.А.Семина - Фото 4
    Продажа дома, Дубровичи, Рязанский район, улица Н.А.Семина - Фото 5
    Продажа дома, Дубровичи, Рязанский район, улица Н.А.Семина - Фото 6
    Продажа дома, Дубровичи, Рязанский район, улица Н.А.Семина - Фото 7
    Продажа дома, Дубровичи, Рязанский район, улица Н.А.Семина - Фото 8
    Продажа дома, Дубровичи, Рязанский район, улица Н.А.Семина - Фото 9
    Продажа дома, Дубровичи, Рязанский район, улица Н.А.Семина - Фото 10
    Продажа дома, Дубровичи, Рязанский район, улица Н.А.Семина - Фото 11
    Продажа дома, Дубровичи, Рязанский район, улица Н.А.Семина - Фото 12
    Продажа дома, Дубровичи, Рязанский район, улица Н.А.Семина - Фото 13
    Продажа дома, Дубровичи, Рязанский район, улица Н.А.Семина - Фото 14
    Продажа дома, Дубровичи, Рязанский район, улица Н.А.Семина - Фото 15
    блочный дом, 1 этаж, общая площадь 102м², жилая 32.5м², кухня 17м², кол-во комнат 3, год постройки 2025, участок 10 соток

    Код объекта: 1989869.Готовый дом в село Дубровичи.Подходит под семейную и it ипотеку. Дом продается в отделке WhiteBox. Площадь дома 102 кв.м., высота потолков: 3 м. Фундамент железобетонный, лента высотой 1000 мм, сваи высотой 1,2 метра, арматурный каркас...
    • 1 эт.
    • 102 м²
    • 10 сот.
    • 3-ком
    8 100 000 Р
    Агент
    +7 (491) Показать номер
    Посмотреть контакты

    Не нашли подходящего объявления?

    Оставьте заявку, и наши риэлторы подберут купить дом в районе Рыбного

    (0)