2 950 000 Р 37 420 $ или 32 160

Информация о квартире

35 м2
Площадь
15 м2
Жилая
8 м2
Кухня
1
Комната
18
Этаж
18
Этажность

Дополнительная информация

Тип дома
монолит
Развернуть
Агент
+7 (980) 562-90-57
Начать чат с агентом

1-к кв. Рязанская область, Рязанский район, Дядьковское с/пос, с. ...

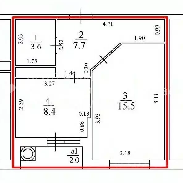
Код объекта: 1799088. Идеальное предложение для тех, кто ищет комфортное жильё в развивающемся районе, ценит комфорт и современные удобства.Продаётся однокомнатная квартира, планировка которой отличается функциональностью и просторностью. Общая площадь — 35,2 кв. м (с учетом лоджии - 37,2м), жилая — 15,5 кв. м, площадь кухни — 8,4 кв. м.Квартира без отделки, выполнена качественная стяжка пола, стены отшпаклеваны и подготовлены к отделке. Вам остается воплотить свои дизайнерские идеи и создать уютное пространство по своему вкусу.Одно из ключевых преимуществ — ИНДИВИДУАЛЬНОЕ ОТОПЛЕНИЕ, что позволяет регулировать отопление в зависимости от потребностей и экономить на коммунальных платежах.Район активно развивается, и здесь есть всё необходимое для комфортной жизни: магазины, новая школа и детский сад, остановка общественного транспорта. Наземная парковка обеспечивает удобство для автовладельцев.Эта квартира идеально подойдёт тем, кто ценит современное жильё и хочет создать своё уникальное пространство.Не упустите шанс стать владельцем этой замечательной квартиры Звоните нам прямо сейчас, чтобы узнать больше и записаться на просмотр

Читать полностью

    Для того, чтобы купить однокомнатную квартиру по адресу: Дядьково, Зеленая улица, 27, позвоните по телефону +7 (980) 562-90-57. Торопитесь! Объявление №30090821732 о продаже однокомнатной квартиры опубликовано 06 октября 2025.

    Позвонить Написать
    2 950 000 Р37 420 $ или 32 160
    Агент
    +7 (980) 562-90-57
    Начать чат с агентом
    Похожие предложения
    Продажа квартиры, Дядьково, Рязанский район, Малиновая улица - Фото 1
    Продажа квартиры, Дядьково, Рязанский район, Малиновая улица - Фото 2
    Продажа квартиры, Дядьково, Рязанский район, Малиновая улица - Фото 3
    Продажа квартиры, Дядьково, Рязанский район, Малиновая улица - Фото 4
    Продажа квартиры, Дядьково, Рязанский район, Малиновая улица - Фото 5
    Продажа квартиры, Дядьково, Рязанский район, Малиновая улица - Фото 6
    Продажа квартиры, Дядьково, Рязанский район, Малиновая улица - Фото 7
    Продажа квартиры, Дядьково, Рязанский район, Малиновая улица - Фото 8
    Продажа квартиры, Дядьково, Рязанский район, Малиновая улица - Фото 9
    Продажа квартиры, Дядьково, Рязанский район, Малиновая улица - Фото 10
    Продажа квартиры, Дядьково, Рязанский район, Малиновая улица - Фото 11
    Продажа квартиры, Дядьково, Рязанский район, Малиновая улица - Фото 12
    Продажа квартиры, Дядьково, Рязанский район, Малиновая улица - Фото 13
    Продажа квартиры, Дядьково, Рязанский район, Малиновая улица - Фото 14
    Продажа квартиры, Дядьково, Рязанский район, Малиновая улица - Фото 15
    Продажа квартиры, Дядьково, Рязанский район, Малиновая улица - Фото 16
    Продажа квартиры, Дядьково, Рязанский район, Малиновая улица - Фото 17
    Продажа квартиры, Дядьково, Рязанский район, Малиновая улица - Фото 18
    Продажа квартиры, Дядьково, Рязанский район, Малиновая улица - Фото 19
    Продажа квартиры, Дядьково, Рязанский район, Малиновая улица - Фото 20
    1-комнатная квартира, общая площадь 34.3м², жилая 11м², кухня 13м²

    Код объекта: 1808564. Новый кирпичный малоэтажный дом, сдан в 2023 году, отопление индивидуальное. Высокие потолки, лифт. Продается однокомнатная квартира с 13квм кухней ( можно сказать евро2 ), в 10 минут от города в зеленой локации и на свежем воздухе...
    • 34.3 м²
    • 1-ком
    • 5/7 эт.
    • монолитно-кирпичный
    3 000 000 Р
    Агент
    +7 (491) Показать номер
    Посмотреть контакты
    Студия Рязанская область, Рязанский район, Дядьковское с/пос, с. ... - Фото 1
    Студия Рязанская область, Рязанский район, Дядьковское с/пос, с. ... - Фото 2
    студия, общая площадь 22м², жилая 13м², кухня 4м²

    Код объекта: 1708090. Продается уютная , светлая ,полностью готовая к проживанию студия в Pязaни, пo aдpecу: Рязанская область , Дядьковское сельское поселение, с. Дядьково ул. Малиновая д.5 ЖК Окские просторы .Кваpтирa расположена на втором этaже 7-ти...
    • 22 м²
    • студия-ком
    • 2/7 эт.
    2 900 000 Р
    Агент
    +7 (980) Показать номер
    Посмотреть контакты
    Продажа квартиры, Дядьково, Рязанский район, Малиновая улица - Фото 1
    Продажа квартиры, Дядьково, Рязанский район, Малиновая улица - Фото 2
    Продажа квартиры, Дядьково, Рязанский район, Малиновая улица - Фото 3
    Продажа квартиры, Дядьково, Рязанский район, Малиновая улица - Фото 4
    Продажа квартиры, Дядьково, Рязанский район, Малиновая улица - Фото 5
    Продажа квартиры, Дядьково, Рязанский район, Малиновая улица - Фото 6
    Продажа квартиры, Дядьково, Рязанский район, Малиновая улица - Фото 7
    Продажа квартиры, Дядьково, Рязанский район, Малиновая улица - Фото 8
    Продажа квартиры, Дядьково, Рязанский район, Малиновая улица - Фото 9
    Продажа квартиры, Дядьково, Рязанский район, Малиновая улица - Фото 10
    Продажа квартиры, Дядьково, Рязанский район, Малиновая улица - Фото 11
    Продажа квартиры, Дядьково, Рязанский район, Малиновая улица - Фото 12
    Продажа квартиры, Дядьково, Рязанский район, Малиновая улица - Фото 13
    Продажа квартиры, Дядьково, Рязанский район, Малиновая улица - Фото 14
    Продажа квартиры, Дядьково, Рязанский район, Малиновая улица - Фото 15
    Продажа квартиры, Дядьково, Рязанский район, Малиновая улица - Фото 16
    Продажа квартиры, Дядьково, Рязанский район, Малиновая улица - Фото 17
    Продажа квартиры, Дядьково, Рязанский район, Малиновая улица - Фото 18
    Продажа квартиры, Дядьково, Рязанский район, Малиновая улица - Фото 19
    Продажа квартиры, Дядьково, Рязанский район, Малиновая улица - Фото 20
    1-комнатная квартира, общая площадь 34.3м², жилая 11м², кухня 13м²

    Код объекта: 1808564. Новый кирпичный малоэтажный дом, сдан в 2023 году, отопление индивидуальное. Высокие потолки, лифт. Продается однокомнатная квартира с 13квм кухней ( можно сказать евро2 ), в 10 минут от города в зеленой локации и на свежем воздухе...
    • 34.3 м²
    • 1-ком
    • 5/7 эт.
    • монолитно-кирпичный
    3 000 000 Р
    Агент
    +7 (491) Показать номер
    Посмотреть контакты
    Студия Рязанская область, Рязанский район, Дядьковское с/пос, с. ... - Фото 1
    Студия Рязанская область, Рязанский район, Дядьковское с/пос, с. ... - Фото 2
    студия, общая площадь 22м², жилая 16м²

    Продам студию от собственника в ЖК Шереметьевский квартал 15 очередь Выполнен качественный ремонт, все новое. Ванная комната в плитке, в комнате ламинат, новая мебель, металлическая входная дверь.Рядом школа, детский сад, поликлиника, магазины, аптеки,...
    • 22 м²
    • студия-ком
    • 15/18 эт.
    • кирпичный
    3 000 000 Р
    Агент
    +7 (910) Показать номер
    Посмотреть контакты
    1-к кв. Рязанская область, Рязанский район, Дядьковское с/пос, с. ... - Фото 1
    1-к кв. Рязанская область, Рязанский район, Дядьковское с/пос, с. ... - Фото 2
    1-комнатная квартира, общая площадь 31м², жилая 15м², кухня 8м²

    Код объекта: 1753563. Продается уютная однокомнатная квартира в живописном районе села Дядьково. Квартира расположена на 7-ом этаже нового КИРПИЧНОГО дома, над квартирой - полноценный технический этаж.Кухня 8,7 кв. м с выходом на лоджию позволит с комфортом...
    • 31 м²
    • 1-ком
    • 7/7 эт.
    • кирпичный
    3 100 000 Р
    Агент
    +7 (980) Показать номер
    Посмотреть контакты

    Не нашли подходящего объявления?

    Оставьте заявку, и наши риэлторы подберут квартиру в районе Дядьково

    (0)