Реализация объекта недвижимости приостановлена

Информация об помещении

1
Этаж

Состояние и оснащение

Количество этажей
5
Развернуть

Помещение свободного назначения в Рязанская область, Рязань ул. ...

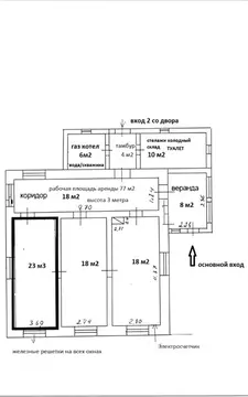
ID в ИМЛС:Сдам ПСН площадью 34 м ( г Рязань ул Каширина 8).Помещение расположено на первой линии.Установлена система видеонаблюдения, пожарная сигнализация, кондиционер.Помещение отлично подходит для размещения салона красоты, офиса, магазина продовольственных и непродовольственных товаров.

Читать полностью

    Реализация объекта недвижимости приостановлена

    Не нашли подходящего объявления?

    Оставьте заявку, и наши риэлторы подберут псн в районе Рязани

    (0)