10 000 000 Р

Информация об помещении

122.6 м2
Площадь
цоколь
Этаж

Состояние и оснащение

Количество этажей
16

Оснащённость

Отопление
есть
Развернуть
Агент
Милосердов Олег Игоревич
+7 (491) 246-65-26
Начать чат с агентом

Продажа торгового помещения, Рязань, Малое ш.

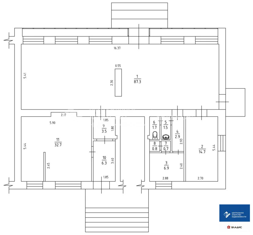
Код объекта: 1828376. Продается нежилое помещение с действующим арендатором, площадь - 122,6 кв.м., в Центре города рядом с ТЦ "Виктория Плаза". Расположено в цокольном этаже многоэтажного дома адрес: Малое шоссе 3, очень активный пешеходный трафик.Планировка офисного типа - несколько кабинетов, 2 входа, высота потолка 3 м., выполнена дизайнерская отделка, установлены душевая кабина, сан. узел.Есть все коммуникации, отопление - индивидуальное, эл. мощность 12,4 кВт.Первый этаж нежилой, рядом расположены действующие магазины, офисы, кафе, ресторан, МКЦ, остановкаобщественного транспорта пл. Победы. Сдано в аренду под ПВЗ Wildberries.Возможное назначение: объект инвестирования (ГАБ) с сохранением действующего арендатора и условий договора аренды. МАП: /мес. комм. платежи арендатор оплачивает отдельно.

Читать полностью

    Для того, чтобы купить торговое помещение площадью 122 кв. метра по адресу: Рязань, Малое ш., 3, позвоните по телефону +7 (491) 246-65-26. Торопитесь! Объявление №800825193 о продаже торгового помещения площадью 122 кв. метра опубликовано Вчера.

    Позвонить Написать
    10 000 000 Р
    Агент
    Милосердов Олег Игоревич
    +7 (491) 246-65-26
    Начать чат с агентом
    Похожие предложения
    Торговая площадь в Рязанская область, Рязань ш. Малое, 3 (123 м) - Фото 1
    Торговая площадь в Рязанская область, Рязань ш. Малое, 3 (123 м) - Фото 2
    Код объекта: 1828376. Продается нежилое помещение с действующим арендатором, площадь - 122,6 кв.м., в Центре города рядом с ТЦ Виктория Плаза . Расположено в цокольном этаже многоэтажного дома адрес: Малое шоссе 3, очень активный пешеходный трафик.Планировка...
    • -1/16 эт.
    10 000 000 Р
    Агент
    +7 (980) Показать номер
    Посмотреть контакты
    Продажа торгового помещения, Рязань, ул. Весенняя - Фото 1
    Продажа торгового помещения, Рязань, ул. Весенняя - Фото 2
    Продажа торгового помещения, Рязань, ул. Весенняя - Фото 3
    Продажа торгового помещения, Рязань, ул. Весенняя - Фото 4
    Продажа торгового помещения, Рязань, ул. Весенняя - Фото 5
    Продажа торгового помещения, Рязань, ул. Весенняя - Фото 6
    Продажа торгового помещения, Рязань, ул. Весенняя - Фото 7
    Продажа торгового помещения, Рязань, ул. Весенняя - Фото 8
    общая площадь 159.6м², реализуемая площадь 159.6м²

    Код объекта: 1805821. Продается нежилое помещение с действующим федеральным арендатором, торговая сеть "Бристоль".Адрес объекта: г. Рязань, ул. Весенняя д. 3/15. Жилой густонаселённый район в Центре города.Первый этаж, первая линия, площадь помещения...
    • 159.6 м²
    • 1/5 эт.
    10 500 000 Р
    Агент
    +7 (491) Показать номер
    Посмотреть контакты
    Торговая площадь в Рязанская область, Рязань ул. Керамзавода, 25 (118 ... - Фото 1
    Торговая площадь в Рязанская область, Рязань ул. Керамзавода, 25 (118 ... - Фото 2
    Код объекта: 1752738. Продаётся торговое помещение площадью 118 кв. м на первом этаже четырёхэтажного кирпичного дома по адресу: Россия, Рязань, улица Керамзавода, 25. Помещение с готовым бизнесом - 3 арендатора (аптека, парикмахерская. хоз. товары).Это...
    • 1/4 эт.
    10 000 000 Р
    Агент
    +7 (980) Показать номер
    Посмотреть контакты
    Торговая площадь в Рязанская область, Рязань Весенняя ул., 3 (160 м) - Фото 1
    Торговая площадь в Рязанская область, Рязань Весенняя ул., 3 (160 м) - Фото 2
    Код объекта: 1805821. Продается нежилое помещение с действующим федеральным арендатором, торговая сеть Бристоль .Адрес объекта: г. Рязань, ул. Весенняя д. 3/15. Жилой густонаселённый район в Центре города.Первый этаж, первая линия, площадь помещения...
    • 1/5 эт.
    10 500 000 Р
    Агент
    +7 (980) Показать номер
    Посмотреть контакты
    Торговая площадь в Рязанская область, Рязань проезд Яблочкова, 4Б (133 ... - Фото 1
    Торговая площадь в Рязанская область, Рязань проезд Яблочкова, 4Б (133 ... - Фото 2
    Код объекта: 1621571. Продается торговая площадь в крупном мебельном центре НИТИ -1 . Помещение площадью 133.3 кв м удачно расположено на 2 этаже вдоль центрального прохода, на 1 линии, недалеко от лестничной группы.Сдано в аренду.ТЦ НИТИ- 1 находится...
    • 2/4 эт.
    9 500 000 Р
    Агент
    +7 (980) Показать номер
    Посмотреть контакты

    Не нашли подходящего объявления?

    Оставьте заявку, и наши риэлторы подберут торговое помещение в районе Рязани

    (0)