3 800 000 Р 47 370 $ или 41 310

Информация об помещении

1
Этаж

Состояние и оснащение

Количество этажей
10
Развернуть
Агент
+7 (910) 563-19-93
Начать чат с агентом

Помещение свободного назначения в Рязанская область, Рязань Московский ...

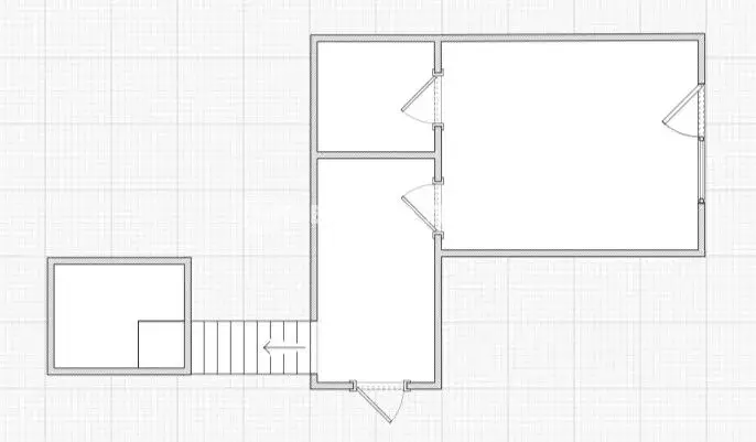
Сообщите специалисту номер объектаВ продаже офисная площадь: зарабатывайте на аренде или работайте с комфортом.Площадь: 44 м2Расположение: проходное место — рядом с остановкой общественного транспорта, ярмарками, торговым комплексом Александровский , ЦНТИ и сельхозакадемией.Описание помещения:2 основные комнаты: столовая и кабинет;на цокольном этаже — дополнительная комната (идеально подойдёт под склад);в столовой есть мокрая точка;проведена новая проводка, установлены современные выключатели и розетки;подведён интернет.Мебель и оборудование:кондиционер;шкаф;комод;стол;диван (IKEA).Преимущества:удобное расположение в оживлённом районе;готовая инфраструктура для работы;возможность организовать как рабочую зону, так и складское помещение;всё необходимое для старта бизнеса уже есть.Помещение общего назначения, возможен широкий спектр использования, к примеру:личный кабинет;консультационный офис;офис продаж.косметический кабинетманикюрный \парикмахерский солон Инвестиционно привлекательное предложение, звоните, чтобы договориться о просмотре

Читать полностью
    Позвонить Написать
    3 800 000 Р47 370 $ или 41 310
    Агент
    +7 (910) 563-19-93
    Начать чат с агентом
    Похожие предложения
    Помещение свободного назначения в Рязанская область, Рязань ул. ... - Фото 1
    Помещение свободного назначения в Рязанская область, Рязань ул. ... - Фото 2
    ID в ИМЛС:Продам ПСН площадью 87 м г Рязань ул Свободы 29, расположенное в цокольном этаже. Помещение светлое и теплое, окна во всех кабинетах. Горячее и холодное водоснабжение. Низкие коммунальные платежи. Высокий автомобильный и пешеходный трафик, 1-я...
    • -1/3 эт.
    3 700 000 Р
    Агент
    +7 (915) Показать номер
    Посмотреть контакты
    Помещение свободного назначения в Рязанская область, Рязань ... - Фото 1
    Помещение свободного назначения в Рязанская область, Рязань ... - Фото 2
    Продаю нежилое помещение площадью 46,9 м в центральной части города. Расположение объекта первой линии обеспечивает высокий уровень пешеходного и автомобильного трафика. Проведен ремонт, установлены две мокрые точки. Предлагается продажа помещения без...
    • -1/4 эт.
    3 800 000 Р
    Агент
    +7 (910) Показать номер
    Посмотреть контакты
    Помещение свободного назначения в Рязанская область, Сасово Шацкая ... - Фото 1
    Помещение свободного назначения в Рязанская область, Сасово Шацкая ... - Фото 2
    Код объекта: 1877425.Уникальное предложение для вашего бизнеса: продаётся коммерческое помещение свободной планировки в Сасово, Рязанская область, по адресу Шацкая улица, 169.Этот объект идеально подойдёт для различных видов деятельности благодаря своей...
    • 1/1 эт.
    3 855 000 Р
    Агент
    +7 (980) Показать номер
    Посмотреть контакты
    Помещение свободного назначения в Рязанская область, Шилово рп ул. ... - Фото 1
    Помещение свободного назначения в Рязанская область, Шилово рп ул. ... - Фото 2
    Код объекта: 1296846.Продаётся коммерческая недвижимость в рабочем посёлке Шилово Рязанской областиИщете идеальное место для бизнеса? Тогда наше предложение именно для вас Продаётся коммерческая недвижимость свободного назначения в рабочем посёлке Шилово,...
    • 1/1 эт.
    3 800 000 Р
    Агент
    +7 (980) Показать номер
    Посмотреть контакты
    Помещение свободного назначения в Рязанская область, Старожилово рп ... - Фото 1
    Помещение свободного назначения в Рязанская область, Старожилово рп ... - Фото 2
    ОТЛИЧНОЕ ПРЕДЛОЖЕНИЕ ПОД КОММЕРЦИЮ Продам здание свободного назначения, общей площадью 200 кв.м, в р.п. Сторожилово Здание отдельно стоящее: своя котельная, приточно-вытяжная система, кондиционирование; есть два санузла, кухня, десять помещений разной...
    • 1/1 эт.
    3 700 000 Р
    Агент
    +7 (910) Показать номер
    Посмотреть контакты

    Не нашли подходящего объявления?

    Оставьте заявку, и наши риэлторы подберут псн в районе Рязани

    (0)