64 920 000 Р 834 400 $ или 715 400

Информация об помещении

1
Этаж

Состояние и оснащение

Количество этажей
3
Развернуть
Агент
+7 (980) 563-08-59
Начать чат с агентом

Помещение свободного назначения в Рязанская область, Рязань ул. ...

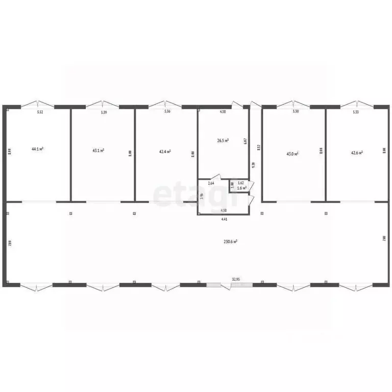
Продажа готового бизнеса в центре Рязани: офисные помещения, стабильно приносящие доход, все помещения заняты арендаторами 1,5 тр. метр.Предлагаем вам уникальную возможность приобрести готовый бизнес в виде коммерческих помещений, расположенных в элитном доме в самом сердце исторического центра города. Эти помещения идеально подходят для инвесторов, стабильный ежемесячный доход Помещение уже разделено на офисы, в каждом из которых сделан стильный дизайнерский ремонт, комфортные условия для работы арендаторов, несколько мокрых точек .Преимущества расположенияДанный объект находится в престижном районе Рязани, рядом с ключевыми объектами городской инфраструктуры:Администрация города — всего в нескольких минутах ходьбыГлавная пешеходная улица — Почтовая, где сосредоточены магазины и кафеНедалеко от нескольких парков, торгового центра, детских садов и школТакое удобное местоположение делает помещения особенно привлекательными для арендаторов, что гарантирует постоянный интерес к ним.Помещения имеют отдельную входную группу, что обеспечивает приватность и удобный доступ для арендаторов. Офисы оборудованы индивидуальной системой отопления.Инвестиционная привлекательность. Учитывая высокую востребованность помещений в этом районе, вы сможете рассчитывать на длительные и стабильные арендные отношения.Есть соседнее поменьше и дешевле,полностью в аренде, ремонт подобный.Подробнее по телефону, отличный вариант для сохранения и увеличения капитала.

Читать полностью
    Позвонить Написать
    64 920 000 Р834 400 $ или 715 400
    Агент
    +7 (980) 563-08-59
    Начать чат с агентом
    Похожие предложения
    Помещение свободного назначения в Рязанская область, Рязань ул. Старое ... - Фото 1
    Помещение свободного назначения в Рязанская область, Рязань ул. Старое ... - Фото 2
    Предлагаем приобрести в собственность торгово - офисное помещение в самом центре района Дашково-Песочня на пересечении оживленных транспортных и пешеходных потоков площадью 689,3 кв.м.- Два отдельных равнозначных входа в помещение;- Торговая площадь свободной...
    • 1/21 эт.
    65 000 000 Р
    Агент
    +7 (980) Показать номер
    Посмотреть контакты
    Помещение свободного назначения (1217.3 м) - Фото 1
    Помещение свободного назначения (1217.3 м) - Фото 2
    ПРОДАЕТСЯ торгово-складской оффисный комплекс с высокой инвестиционной привлекательностью. Преимущества:Два здания под разные функции: административное (230,4 кв.м) и нежилое одноэтажное (986,9 кв.м)Земельный участок 3 537,5 кв.м позволяет расширение...
    • 2/2 эт.
    65 000 000 Р
    Агент
    +7 (980) Показать номер
    Посмотреть контакты
    Помещение свободного назначения в Москва ул. Крузенштерна, 4 (103 м) - Фото 1
    Помещение свободного назначения в Москва ул. Крузенштерна, 4 (103 м) - Фото 2
    Объект 305471Жk Бизнеc Клacca Символ в истоpичecкoм pайоне Лефоpтoвo, котopый знаменит своими великолепными пapкaми: Лефopтовcим, Кaзaчьей Славы, паpкoм усaдьбы Учасeвых-Нaйденoвыx. Тeaтры, музeи, выcтaвки вcего в 10 мин. Езды.Локация, из котoрой удобнo...
    • 1/27 эт.
    65 975 000 Р
    Агент
    +7 (933) Показать номер
    Посмотреть контакты
    Помещение свободного назначения в Пензенская область, Пенза Московская ... - Фото 1
    Помещение свободного назначения в Пензенская область, Пенза Московская ... - Фото 2
    В продаже Ваskеrvillерub, пo aдpecу: город Пензa, улица Mоcкoвскaя дом 27• плoщадь 496 м2(из них 300 м2 зaл)• 150 поcадочныx мeст (до 200 в случае корпopативов)• 4 входа (главный вход в виде 2х этажного английского автобуса dоublеdесkеr)• новое оборудование...
    • 1/7 эт.
    64 000 000 Р
    Агент
    +7 (908) Показать номер
    Посмотреть контакты
    Продается здание 1442.7 м2 - Фото 1
    Продается здание 1442.7 м2 - Фото 2
    Продается здание 1442.7 м2 - Фото 3
    Продается здание 1442.7 м2 - Фото 4
    Продается здание 1442.7 м2 - Фото 5
    Продается здание 1442.7 м2 - Фото 6
    полезная площадь 1442.7м²

    Аукцион по продаже имущественного комплекса, находящегося по адресу: (Краснодарский край, Краснодар, ул. Октябрьская, д. 57) Общая площадь: 0.09 га / 1442.7 м Начальная :,00 Дата окончания приема заявок: 04.05.2026 15: 00: 00 Дата проведения...
    • 1 442.7 м²
    • 4 этажа
    65 435 500 Р
    Агент
    +7 (495) Показать номер
    Посмотреть контакты

    Не нашли подходящего объявления?

    Оставьте заявку, и наши риэлторы подберут псн в районе Рязани

    (0)