4 300 000 Р 53 100 $ или 46 040

Информация об помещении

1
Этаж

Состояние и оснащение

Количество этажей
10
Развернуть
Агент
+7 (915) 591-89-90
Начать чат с агентом

Помещение свободного назначения в Рязанская область, Рязань ш. ...

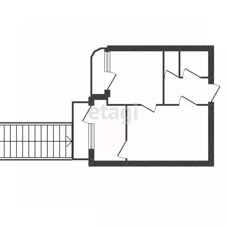
Продам нежилое помещение. Расположено на 1 этаже кирпичного жилого дома 2007 года постройки.Есть действующий арендатор. Пункт выдачи ОЗОН Отдельная входная группа, ремонт. Есть разделение на несколько небольших кабинетов. Оборудовано 3 мокрых точки. Установлена душевая кабина. Помещение уютное, теплое, сухое. Прямая продажа. Любая форма расчетов. Собственник физлицо. Показы по предварительной договорённости.

Читать полностью
    Позвонить Написать
    4 300 000 Р53 100 $ или 46 040
    Агент
    +7 (915) 591-89-90
    Начать чат с агентом
    Похожие предложения
    Помещение свободного назначения в Рязанская область, Рязань ш. ... - Фото 1
    Помещение свободного назначения в Рязанская область, Рязань ш. ... - Фото 2
    Сообщите специалисту номер объектаПродается нежилое помещение площадью 40.1 кв.Отдельная входная группа, хороший офисный ремонт.Помещение отлично подойдёт как для ведения бизнеса, так и для сдачи в аренду. Планировка включает в себя: просторный холл,...
    • 1/9 эт.
    4 300 000 Р
    Агент
    +7 (910) Показать номер
    Посмотреть контакты
    Помещение свободного назначения в Амурская область, с. Тамбовка ул. ... - Фото 1
    Помещение свободного назначения в Амурская область, с. Тамбовка ул. ... - Фото 2
    Продаётся коммерческое помещение 113 м в центре села Тамбовка идеальный объект для вашего бизнеса Почему это выгодно:- Площадь 113 м: просторная и функциональная планировка.- Два входа удобство для клиентов.- Участок 5 соток место для летней зоны или...
    • 1/1 эт.
    4 200 000 Р
    Агент
    +7 (914) Показать номер
    Посмотреть контакты
    Помещение свободного назначения в Белгородская область, Белгород ... - Фото 1
    Помещение свободного назначения в Белгородская область, Белгород ... - Фото 2
    Продается помещение в центральной части города в цокольном этаже многоквартирного жилого дома на пересечении улиц 3 Интернациоала и Нагорной общей площадью 181,3 кв.м. - 71,3 кв.м. торговой и 110 кв.м. складской под любой вид деятельности. Идеально подходит...
    • -1/10 эт.
    4 400 000 Р
    Агент
    +7 (980) Показать номер
    Посмотреть контакты
    Помещение свободного назначения в Белгородская область, Белгородский ... - Фото 1
    Помещение свободного назначения в Белгородская область, Белгородский ... - Фото 2
    Продаётся коммерческое помещение 40,7 кв.м, в жилом доме с ОТДЕЛЬНЫМ ВХОДОМ. Использовалось под стоматологический кабинет. В помещении хороший ремонт, на полу ламинат, окна ПВХ, удобная планировка, сан.узел, ванная.Видеонаблюдение, пожарная сигнализация....
    • 1/5 эт.
    4 400 000 Р
    Агент
    +7 (915) Показать номер
    Посмотреть контакты
    Помещение свободного назначения в Владимирская область, Владимир ул. ... - Фото 1
    Помещение свободного назначения в Владимирская область, Владимир ул. ... - Фото 2
    Код объекта: 1386773. Продаётся коммерческое помещение площадью 38,8 квадратных метров в комплексе Вишня парк в центре города. Помещение расположено на третьем этаже.Использовать возможно по различным направлениям: сфера услуг, офис, торговля. Отличное...
    • 3/4 эт.
    4 250 000 Р
    Агент
    +7 (910) Показать номер
    Посмотреть контакты

    Не нашли подходящего объявления?

    Оставьте заявку, и наши риэлторы подберут псн в районе Рязани

    (0)