11 000 000 Р 139 300 $ или 119 500

Информация о помещении и здании

1
Этаж
10
Этажность
Развернуть
Агент
+7 (915) 593-27-71
Начать чат с агентом

Офис в Рязанская область, Рязань Песочня тер., ул. Советской Армии, ...

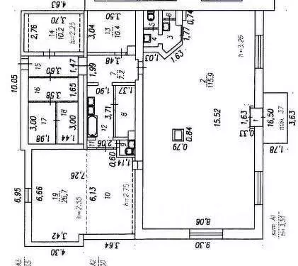
Арт.. Арт. В продаже многофункциональный офис в жилом доме 2003 года постройки. Расположение: Объект находится в микрорайоне Дашково-Песочня. Офис расположен в зоне удобной транспортной развязки и имеет прямой подъезд как со стороны Северной окружной дороги (через улицу Новосёлов), так и со стороны Восточной окружной дороги (Выезд на трассу М-5). Описание: Общая площадь 175 кв. м. Высота потолков: 3 м. Планировка: смешанная. Офис разделён на 4 кабинета разной площади. Совмещённый с/у. Кухня. Сделан качественный ремонт. Техническое оснащение: центральная система кондиционирования, приточно-вытяжная вентиляция, система пожаротушения, быстрый интернет, Wi-Fi точки в каждом помещении. Паркинг: несколько парковочных мест во дворе дома. Безопасность: видеонаблюдение, охранная система. Инфраструктура: Внутренняя: Современный офис куда хочется приходить работать Продуманны зоны для встреч и переговоров. Многофункциональная кухня оснащённая всей необходимой бытовой техникой. Организованы приватные рабочие места, которые позволят не отвлекаться от рабочего процесса. Внешняя: банковские отделения, аптека, супермаркет, остановка общественного транспорта в шаговой доступности. Возможность размещения вашей вывески на фасаде здания. Офис подходит под разные виды деятельности. На данный момент арендатор с договором долгосрочной аренды Дополнительную информации о цене и условиях покупки помещения уточняйте по телефону. Контактное лицо - Егор.

Читать полностью
    Позвонить Написать
    11 000 000 Р139 300 $ или 119 500
    Агент
    +7 (915) 593-27-71
    Начать чат с агентом
    Похожие предложения
    Офис в Рязанская область, Рязань ул. Горького, 76 (164 м) - Фото 1
    Офис в Рязанская область, Рязань ул. Горького, 76 (164 м) - Фото 2
    1-й этаж, всего 4 этажа

    Сообщите специалисту номер объекта 932037 Пятикомнатное помещение в центре города. Первый этаж четырёхэтажного кирпичного дома. Все комнаты изолированные. Просторный коридор. Есть гардеробная. Две застеклённые лоджии. На 2025 год запланирован капитальный...
    • 1/4 эт.
    12 000 000 Р
    Агент
    +7 (910) Показать номер
    Посмотреть контакты
    Офис в Воронежская область, Воронеж ул. 9 Января, 36/1 (66 м) - Фото 1
    Офис в Воронежская область, Воронеж ул. 9 Января, 36/1 (66 м) - Фото 2
    4-й этаж, всего 9 этажей

    Продаётся офис в Бизнес-Центре ВЫСОЦКИЙ. Приносит доход, есть арендатор.Главный ПЛЮС - РАСПОЛОЖЕНИЕ в центре города, удобство для работы с клиентами.ПРЕИМУЩЕСТВА:- собственный санузел в офисе (туалет, раковина, горячая вода);- подсобное помещение (ещё...
    • 4/9 эт.
    11 200 000 Р
    Агент
    +7 (915) Показать номер
    Посмотреть контакты
    Офис в Кемеровская область, Новокузнецк ул. Орджоникидзе, 35 (155 м) - Фото 1
    Офис в Кемеровская область, Новокузнецк ул. Орджоникидзе, 35 (155 м) - Фото 2
    6-й этаж, всего 16 этажей

    Продаётся офисное помещение в самом центре города На 6 этаже с прекрасными видом из окна. Офис светлый просторный Удобно для деловых встреч и корпоративных мероприятий. Большой просторный хол. Дневной свет весь рабочий день Отличная инфраструктура...
    • 6/16 эт.
    10 850 000 Р
    Агент
    +7 (939) Показать номер
    Посмотреть контакты
    Офис в Кемеровская область, Новокузнецк просп. Металлургов, 39 (160 м) - Фото 1
    Офис в Кемеровская область, Новокузнецк просп. Металлургов, 39 (160 м) - Фото 2
    цокольный этаж, всего 5 этажей

    Продается просторное цокольное помещение общей площадью 160,3 м с отдельным выходом, готовое для успешного бизнеса. Объект обладает статусом нежилого помещения и идеально подойдет для размещения офиса юридической или консалтинговой компании, ресторана,...
    • -1/5 эт.
    10 900 000 Р
    Агент
    +7 (981) Показать номер
    Посмотреть контакты
    Офис в Кемеровская область, Новокузнецк ул. Мичурина, 9 (177 м) - Фото 1
    Офис в Кемеровская область, Новокузнецк ул. Мичурина, 9 (177 м) - Фото 2
    1-й этаж, всего 5 этажей

    Продается в жилом доме коммерческое помещение общей площадью 176,4 м2.Отдельный вход.Первая линия.Есть арендатор.Приятный косметический ремонт.Высокие потолки.Два санузла.Планировка смешанная. Имеется большой зал и несколько кабинетов.Центральное отопление,...
    • 1/5 эт.
    10 000 000 Р
    Агент
    +7 (981) Показать номер
    Посмотреть контакты

    Не нашли подходящего объявления?

    Оставьте заявку, и наши риэлторы подберут офис в районе Рязани

    (0)