Россия, Рязанская область, Рязань, улица Александра Полина, 3
62:29:0061004:3227
7 500 000 Р

Информация о квартире

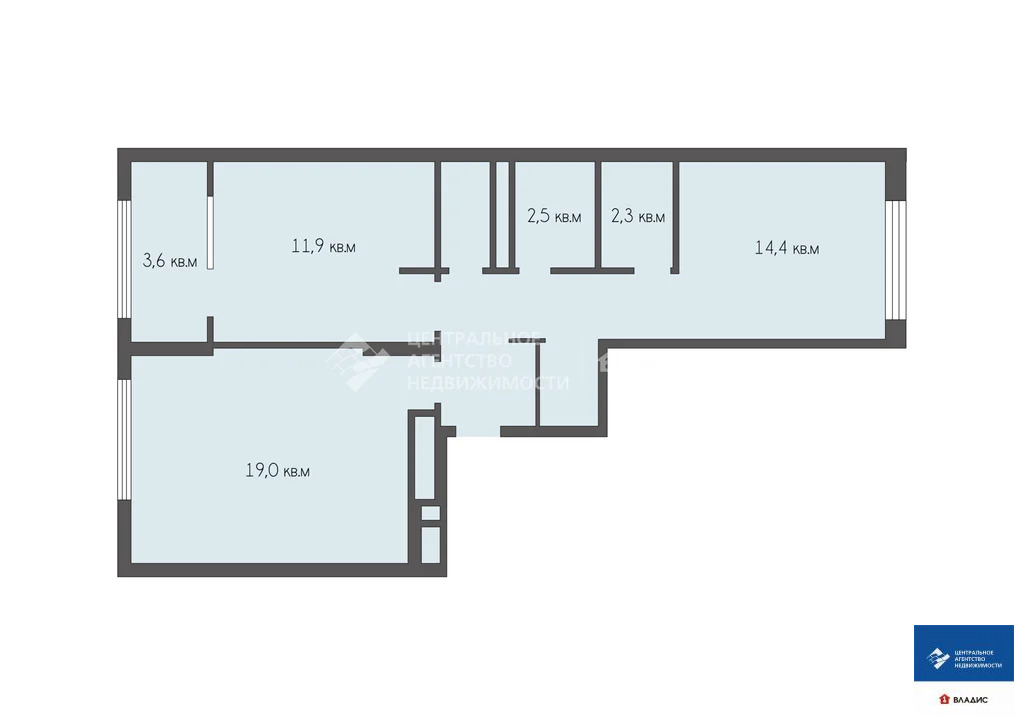
54.7 м2
Площадь
24.4 м2
Жилая
19.0 м2
Кухня
2
Комнаты
11
Этаж
25
Этажность
24.42 м2
Площадь комнат
2025
Построен

Состояние и оснащение

Вид из окон
двор и улица
Тип санузла
раздельный
Лифт
есть

Дополнительная информация

Тип дома
монолит
Тип комнат
раздельные
Лифт
пассажирский
Тип продажи
свободная
Собственников
1
Возможность ипотеки
да
Развернуть
Агент
Машинцева Александра Геннадьевна
+7 (491) 246-65-26
Начать чат с агентом

Продажа квартиры, Рязань, улица Александра Полина

Код объекта: 1989461.Уникальное предложение в Рязани: просторная двухкомнатная квартира на улице Александра Полина, 3 — идеальный выбор для тех, кто ценит комфорт и качество!Квартира расположена на 11-м этаже 25-этажного монолитного дома, построенного в 2025 году. Благодаря современной конструкции и своей котельной в квартире всегда будет тепло и уютно. Окна выходят на улицу и во двор, а наличие лоджии позволит наслаждаться видами на набережную и свежим воздухом. Общая площадь квартиры составляет 54,7 кв. м, 24,42 кв. м занимает кухня. Две изолированные комнаты с площадями 12,04 кв. м и 12,38 кв. м создадут удобство для всех членов семьи. Высота потолков 2,7 м добавляет пространству воздуха и свободы. Ремонт white box даёт возможность воплотить любые дизайнерские идеи, а огороженная территория и наземная парковка обеспечивают безопасность и удобство.Не упустите шанс стать обладателем этой прекрасной квартиры! Звоните нам прямо сейчас, чтобы узнать больше и записаться на просмотр. Мы гарантируем безопасную сделку и юридическую поддержку нашим Клиентам.Поможем одобрить ипотеку со сниженной ставкой.

Читать полностью

    Для того, чтобы купить двухкомнатную квартиру по адресу: Рязань, улица Александра Полина, 3, позвоните по телефону +7 (491) 246-65-26. Торопитесь! Объявление №345527859 о продаже двухкомнатной квартиры опубликовано Сегодня.

    Позвонить Написать
    7 500 000 Р
    Агент
    Машинцева Александра Геннадьевна
    +7 (491) 246-65-26
    Начать чат с агентом
    Похожие предложения
    1-к кв. Рязанская область, Рязань Московский р-н, проезд 4-й ... - Фото 1
    1-к кв. Рязанская область, Рязань Московский р-н, проезд 4-й ... - Фото 2
    1-комнатная квартира, общая площадь 42м², жилая 12м², кухня 19м²

    Продам 1-ую квартиру Центр Московского.ЖК Дискавери.Монолит, год постройки-2024.-Квартира с современным, новым ремонтом(ни кто не жил);-Большая куня-гостинная;-Просторная спальня;-Панорамные окна, где открывается шикарный вид на город;-Совместный санузел...
    • 42 м²
    • 1-ком
    • 24/25 эт.
    • монолит
    7 500 000 Р
    Агент
    +7 (910) Показать номер
    Посмотреть контакты
    2-к кв. Рязанская область, Рязань ул. Александра Полина, 3 (55.9 м) - Фото 1
    2-к кв. Рязанская область, Рязань ул. Александра Полина, 3 (55.9 м) - Фото 2
    2-комнатная квартира, общая площадь 55м², жилая 22м², кухня 21м²

    Код объекта: 1954027.Продаётся стильная двухкомнатная квартира с панорамным видом Ключевые преимущества: Окна на две стороны: благоустроенная набережная и тихий двор. Ремонт White Box: идеальная чистая основа для воплощения любого дизайна. Умная планировка:...
    • 55 м²
    • 2-ком
    • 16/21 эт.
    7 550 000 Р
    Агент
    +7 (980) Показать номер
    Посмотреть контакты
    2-к кв. Рязанская область, Рязань ул. Александра Полина, 3 (54.7 м) - Фото 1
    2-к кв. Рязанская область, Рязань ул. Александра Полина, 3 (54.7 м) - Фото 2
    2-комнатная квартира, общая площадь 54м², жилая 24м², кухня 19м²

    Код объекта: 1989461.Уникальное предложение в Рязани: просторная двухкомнатная квартира на улице Александра Полина, 3 — идеальный выбор для тех, кто ценит комфорт и качество Квартира расположена на 11-м этаже 25-этажного монолитного дома, построенного...
    • 54 м²
    • 2-ком
    • 11/25 эт.
    • монолит
    7 500 000 Р
    Агент
    +7 (980) Показать номер
    Посмотреть контакты
    2-комнатная квартира: Рязань, Московский район, 4-й Мервинский проезд, ... - Фото 1
    2-комнатная квартира: Рязань, Московский район, 4-й Мервинский проезд, ... - Фото 2
    2-комнатная квартира, общая площадь 69м², жилая 30м², кухня 24м²

    Продам квартиру с планировкой Е-3 общей площадью 69,8 кв.м.-ПВХ остекление-высокие потолки 2,72 м.-котел индивидуального отопления-просторные комнаты-большая кухня-гостиная 24,3 кв.м.-интеллектуальная система «Антитеррор -функциональное и комфортное...
    • 69 м²
    • 2-ком
    • 3/25 эт.
    7 500 000 Р
    Агент
    +7 (906) Показать номер
    Посмотреть контакты
    Продажа квартиры, Рязань, ул. Быстрецкая - Фото 1
    Продажа квартиры, Рязань, ул. Быстрецкая - Фото 2
    Продажа квартиры, Рязань, ул. Быстрецкая - Фото 3
    Продажа квартиры, Рязань, ул. Быстрецкая - Фото 4
    Продажа квартиры, Рязань, ул. Быстрецкая - Фото 5
    Продажа квартиры, Рязань, ул. Быстрецкая - Фото 6
    Продажа квартиры, Рязань, ул. Быстрецкая - Фото 7
    Продажа квартиры, Рязань, ул. Быстрецкая - Фото 8
    Продажа квартиры, Рязань, ул. Быстрецкая - Фото 9
    Продажа квартиры, Рязань, ул. Быстрецкая - Фото 10
    Продажа квартиры, Рязань, ул. Быстрецкая - Фото 11
    Продажа квартиры, Рязань, ул. Быстрецкая - Фото 12
    Продажа квартиры, Рязань, ул. Быстрецкая - Фото 13
    Продажа квартиры, Рязань, ул. Быстрецкая - Фото 14
    Продажа квартиры, Рязань, ул. Быстрецкая - Фото 15
    Продажа квартиры, Рязань, ул. Быстрецкая - Фото 16
    Продажа квартиры, Рязань, ул. Быстрецкая - Фото 17
    Продажа квартиры, Рязань, ул. Быстрецкая - Фото 18
    Продажа квартиры, Рязань, ул. Быстрецкая - Фото 19
    Продажа квартиры, Рязань, ул. Быстрецкая - Фото 20
    1-комнатная квартира, с евроремонтом, общая площадь 45м², жилая 16м², кухня 21м²

    Код объекта: 1996791.Стильный дом , построенный Зеленым садом в 2021 году.Индивидуальное отопление.Самая большая планировка из евро-двушек с окнами в тихий двор и красивый прогулочный стилобат.Квартира полностью с ремонтом и мебелью (подвесной унитаз,...
    • 45 м²
    • 1-ком
    • 2/25 эт.
    • монолит
    7 500 000 Р
    Агент
    +7 (491) Показать номер
    Посмотреть контакты

    Не нашли подходящего объявления?

    Оставьте заявку, и наши риэлторы подберут квартиру в районе Рязани

    (0)