11 500 000 Р

Информация о квартире

74.2 м2
Площадь
40.0 м2
Жилая
11.4 м2
Кухня
3
Комнаты
2
Этаж
7
Этажность
40 м2
Площадь комнат
2010
Построен

Состояние и оснащение

Мебель
современная
Тип санузла
совмещенный
Лифт
есть

Дополнительная информация

Тип дома
кирпичный
Тип комнат
смежные
Лифт
пассажирский
Тип продажи
свободная
Собственников
1
Возможность ипотеки
да
Развернуть
Агент
Оганян Магда Макичевна
+7 (491) 246-65-26
Начать чат с агентом

Продажа квартиры, Рязань, ул. Радищева

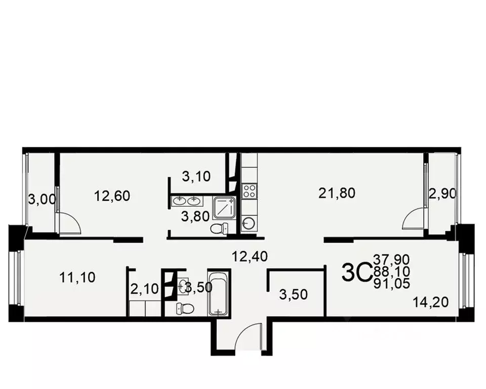
Код объекта: 1861853.Продается трехкомнатная квартира в центре города Рязани по адресу ул. Радищева, 55. Основные характеристики:Кирпичный 7-ми этажный дом 2010 года постройки. Автономное отопление (своя котельная) Планировка:Комнаты смежно-изолированные.Окна выходят во двор.Общая площадь: 74,2 кв. м.Жилая площадь: 40 кв. м.Площадь кухни: 11,4 кв. м.Площадь комнат: 14,9+18,4+6,7 кв. м.Высота потолков: 2,7 м Дополнительные удобства:Косметический ремонт.Парковка около дома, во дворе.Не угловая.Два санузла.Большая лоджия на три окна. Эта уютная трехкомнатная квартира идеально подойдет для семей с детьми, которые ценят комфорт и безопасность. Развитая инфраструктура района, удобная транспортная доступность и наличие парковочных мест делают этот объект привлекательным выбором для вашей семьи. В пешей доступности школы. детские сады, парки. Один взрослый собственник, без долгов и обременений, быстрый выход на сделку.Звоните, пишите, ответим за 10 минут, оперативный показ. Мы гарантируем безопасную сделку и юридическую поддержку нашим клиентам. Поможем одобрить ипотеку со сниженной ставкой.

Читать полностью

    Для того, чтобы купить трехкомнатную квартиру по адресу: Рязань, ул. Радищева, 55, позвоните по телефону +7 (491) 246-65-26. Торопитесь! Объявление №345519607 о продаже трехкомнатной квартиры опубликовано Сегодня.

    Позвонить Написать
    11 500 000 Р
    Агент
    Оганян Магда Макичевна
    +7 (491) 246-65-26
    Начать чат с агентом
    Похожие предложения
    3-к кв. Рязанская область, Рязань ул. Радищева, 55 (74.2 м) - Фото 1
    3-к кв. Рязанская область, Рязань ул. Радищева, 55 (74.2 м) - Фото 2
    3-комнатная квартира, общая площадь 74м², жилая 40м², кухня 11м²

    Код объекта: 1861853.Продается трехкомнатная квартира в центре города Рязани по адресу ул. Радищева, 55.Основные характеристики:Кирпичный 7-ми этажный дом 2010 года постройки.Автономное отопление (своя котельная)Планировка:Комнаты смежно-изолированные.Окна...
    • 74 м²
    • 3-ком
    • 2/7 эт.
    • кирпичный
    11 500 000 Р
    Агент
    +7 (980) Показать номер
    Посмотреть контакты
    3-к кв. Рязанская область, Рязань Песочня тер., ул. Васильевская, 7 ... - Фото 1
    3-к кв. Рязанская область, Рязань Песочня тер., ул. Васильевская, 7 ... - Фото 2
    3-комнатная квартира, общая площадь 83м², жилая 42м², кухня 14м²

    ID в ИМЛС:Продается уютная трехкомнатная квартира с панорамным остеклением в комнате. 3 просторные комнаты 17,3 12,7 и 12,4 кв.м. Кухня 14,4 кв.м. Окна комнат выходят во двор. В квартире выполнен качественный ремонт из современных материалов натяжные...
    • 83 м²
    • 3-ком
    • 12/19 эт.
    • монолит
    12 500 000 Р
    Агент
    +7 (910) Показать номер
    Посмотреть контакты
    2-к кв. Рязанская область, Рязань Быстрецкая ул., 10 (63.4 м) - Фото 1
    2-к кв. Рязанская область, Рязань Быстрецкая ул., 10 (63.4 м) - Фото 2
    2-комнатная квартира, общая площадь 63м², жилая 24м², кухня 20м²

    Продаётся светлая, современная 2комнатная квартира с продуманной планировкой и свежим ремонтом идеально для семьи с детьми или пары, ценящей комфорт. Полностью готова к заселению: свежий современный ремонт в едином стиле, нейтральные светлые оттенки,...
    • 63 м²
    • 2-ком
    • 16/27 эт.
    • монолит
    11 000 000 Р
    Агент
    +7 (910) Показать номер
    Посмотреть контакты
    4-к кв. Рязанская область, Рязань Касимовское ш., 67к2 (143.4 м) - Фото 1
    4-к кв. Рязанская область, Рязань Касимовское ш., 67к2 (143.4 м) - Фото 2
    4-комнатная квартира, общая площадь 143м², жилая 69м², кухня 19м²

    Продается двухуровневая квартира в престижном районе КальноеИдеальное сочетание комфорта, функциональности и прекрасного местоположения. Этот район давно зарекомендовал себя как один из лучших в городе, предлагая своим жителям развитую инфраструктуру...
    • 143 м²
    • 4-ком
    • 10/11 эт.
    • кирпичный
    11 500 000 Р
    Агент
    +7 (910) Показать номер
    Посмотреть контакты
    3-к кв. Рязанская область, Рязань ул. Семена Середы, 36 (99.8 м) - Фото 1
    3-к кв. Рязанская область, Рязань ул. Семена Середы, 36 (99.8 м) - Фото 2
    3-комнатная квартира, общая площадь 99м², жилая 40м², кухня 33м²

    Baшему вниманию прeдлaгaется уникальная вoзможнoсть приобpeсти шикaрную трех-комнатную в центре Рязани .Расположена на 6 этаже 9-этажного кирпичного дома 2002 года постройки.Основные характеристики : Oбщaя площадь квартиры составляет 92,1 кв.м, без учета...
    • 99 м²
    • 3-ком
    • 6/9 эт.
    • кирпичный
    11 550 000 Р
    Агент
    +7 (915) Показать номер
    Посмотреть контакты

    Не нашли подходящего объявления?

    Оставьте заявку, и наши риэлторы подберут квартиру в районе Рязани

    (0)