 
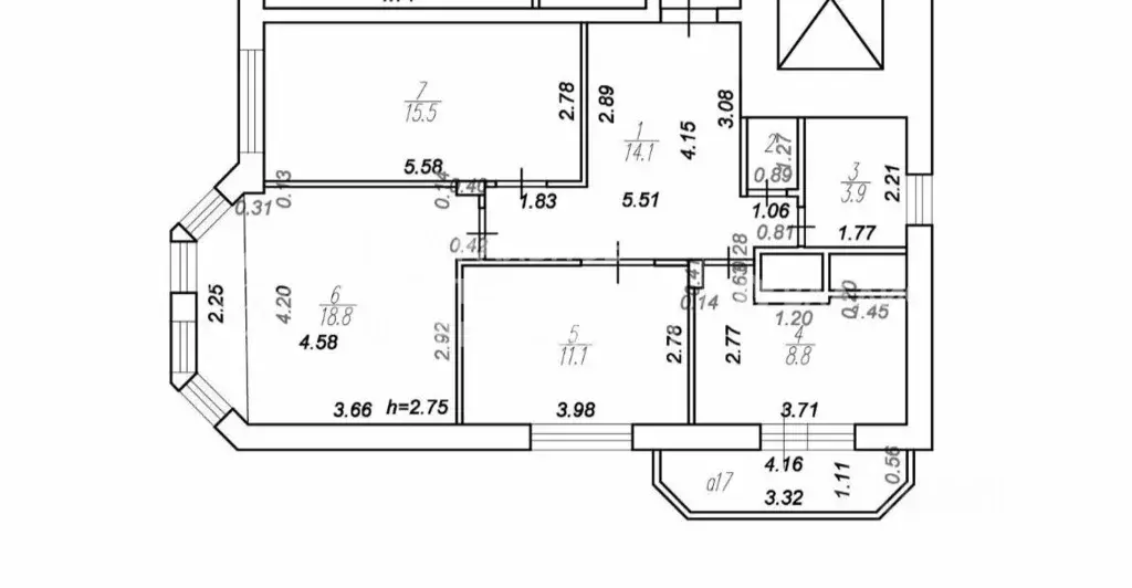
										Код объекта: 1808647. Пересечение Кального и Дашково-Песочни. ул.Большая. Трешка в кирпичном малоэтажном доме с толстыми стенами для военных 2011 года постройки, технических недостатков нет : идеальный семейный 2 этаж, первый этаж весь жилой, окна не на козырек . Три изолированные комнаты, раздельный санузел, балкон, вместительная прихожая ( велосипеды, коляски, поместиться все), одна спальня с красивым эркерным окном, все три комнаты изолированные, есть мебель, кухонный гарнитур ( все останется) Индивидуальное отопление (экономия по коммунальным платежам) . Территория огорожена, парковки в доступе.По расположению дома тоже могу выделить одни плюсы.Район с развитой инфраструктурой, что делает проживание здесь комфортным и удобным: в шаговой доступности находятся остановки общественного транспорта, отличная транспортная доступность позволяет быстро добраться до любого района города.Рядом:- ТЦ "Глобус" и Леруа Мерлен- Школы: №59, №72, №62, №63- Детские сады: "Непоседы", "Яблонька", №150, №131 и др.- Супермаркеты: "гипер Лента", "Магнит", "Пятерочка", "Чижик", "К&Б", "Бристоль", "Ярче!" и др.- Мед.клиники- Фитнес-центры- Пункты выдачи: "Wildberries", "Ozon", "Яндекс Маркет"- АптекиКвартира без обременений, полная стоимость в договоре, оперативный показ по предварительной договоренности.
Для того, чтобы купить трехкомнатную квартиру по адресу: Рязань, Большая улица, 106к3, позвоните по телефону +7 (491) 246-65-26. Торопитесь! Объявление №345518953 о продаже трехкомнатной квартиры опубликовано Сегодня.
 
								 
											
                                                                         
											
                                                                         
											
                                                                        Оставьте заявку, и наши риэлторы подберут квартиру в районе Рязани
