Узнать последнюю цену

Реализация объекта недвижимости приостановлена

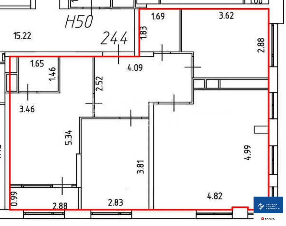
Информация о квартире

78 м2
Площадь
40.0 м2
Жилая
24.0 м2
Кухня
3
Комнаты
18
Этаж
25
Этажность
40 м2
Площадь комнат
2023
Построен

Состояние и оснащение

Вид из окон
во двор
Ремонт
евроремонт
Тип санузла
совмещенный
Лифт
есть

Дополнительная информация

Тип дома
монолитно-кирпичный
Тип комнат
раздельные
Лифт
пассажирский
Тип продажи
свободная
Собственников
1
Возможность ипотеки
да
Развернуть

Продажа квартиры, Рязань

Код объекта: 1760405.Продаётся уютная 3-х комнатная квартира с шикарным видом из окна!- Комнаты изолированные- Отопление автономное, с энергосберегающими счётчикам на каждую квартиру- Большая кухня- Вид из окна шикарный!!!!- просторный коридор- сделан ремонт-можно сразу заезжать и жить- остаётся мебель и техника.- КЛАДОВКА на этажеРядом с комплексом расположен Центр большого тенниса. Комплекс представляет собой современный городской квартал с огромной отдельной территорией.В течение нескольких лет будут построены два детских сада, школа, торговый центр с остановкой общественного транспорта.Для жителей, ведущих активный образ жизни, будут организованы баскетбольные, волейбольные и хоккейные площадки, проложены велосипедные и беговые дорожки, создан уличный спортзал.Для детей установят площадки с игровыми комплексами, скалодром и скейтдром.

Читать полностью
    Узнать последнюю цену

    Реализация объекта недвижимости приостановлена

    Не нашли подходящего объявления?

    Оставьте заявку, и наши риэлторы подберут квартиру в районе Рязани

    (0)