4 400 000 Р 57 100 $ или 48 330

Информация о квартире

52 м2
Площадь
31 м2
Жилая
9 м2
Кухня
2
Комнаты
4
Этаж
5
Этажность

Дополнительная информация

Тип дома
панельный
Развернуть
Агент
+7 (915) 597-17-89
Начать чат с агентом

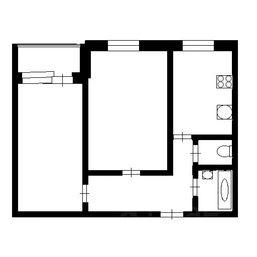
2-к кв. Рязанская область, Рязань ул. Котовского, 1/3 (52.0 м)

Продается отличная двухкомнатная квартира, наполненная светом и уютом. Квартира общей площадью 52 квадратных метров представляет собой идеальное сочетание комфорта и функциональности. Квартира отличается продуманной планировкой, позволяющей реализовать самые смелые дизайнерские решения. Комната правильной формы и вместительная кухня создают пространство для творчества и комфортной жизни. Так же есть отдельное кладовое помещение. Детские и спортивные площадки создают условия для активного отдыха и развития детей. Так же присутствует большая парковка. В шаговой доступности расположены школа и детский сад, что делает эту квартиру идеальным вариантом для семей с детьми. Рядом расположены продуктовые магазины, медицинская клиника, аптека, пункты выдачи - что обеспечивает жителям максимальный комфорт и удобство. Остановка общественного транспорта в шаговой доступности позволяет быстро и легко добраться в любую точку города. Возможно приобретение с привлечением ипотечных средств и средств материнского капитала. ЗВОНИТЕ и при покупке с нами Вы ПОЛУЧИТЕ: - полное и качественное юридическое сопровождение на всех этапах, что гарантирует чистоту сделки и безопасность расчетов - индивидуальный НАИБОЛЕЕ ВЫГОДНЫЙ подбор ипотечной программы - повышенный процент положительного одобрения ипотеки по сниженным ставкам, предоставляемых банками партнерами, как на вторичное жилье, так и на новостройки.

Читать полностью

    Для того, чтобы купить двухкомнатную квартиру по адресу: Рязань, ул. Котовского, 1/3, позвоните по телефону +7 (915) 597-17-89. Торопитесь! Объявление №30093428708 о продаже двухкомнатной квартиры опубликовано Вчера.

    Позвонить Написать
    4 400 000 Р57 100 $ или 48 330
    Агент
    +7 (915) 597-17-89
    Начать чат с агентом
    Похожие предложения
    2-к кв. Рязанская область, Рязань ул. Бирюзова, 23 (53.0 м) - Фото 1
    2-к кв. Рязанская область, Рязань ул. Бирюзова, 23 (53.0 м) - Фото 2
    2-комнатная квартира, общая площадь 53м², жилая 35м², кухня 8м²

    За объект уже внесли авансАрт.. О доме:Панельный дом.Год постройки 1983. Во дворе дома расположена детская игровая площадка и парковка для жильцов дома.О районе:Моссковский район, В пешей доступности расположена школа, детский сад, остановки общественного...
    • 53 м²
    • 2-ком
    • 4/9 эт.
    • панельный
    4 350 000 Р
    Агент
    +7 (939) Показать номер
    Посмотреть контакты
    1-к кв. Рязанская область, Рязань Быстрецкая ул., 20к3 (41.7 м) - Фото 1
    1-к кв. Рязанская область, Рязань Быстрецкая ул., 20к3 (41.7 м) - Фото 2
    1-комнатная квартира, общая площадь 41м²

    Квартира однокомнатная Евро жилое Площадь: 41.7 кв. м Адрес Российская Федерация, Рязанская обл., городской округ город Рязань, город Рязань, ул. Быстрецкая,д. 20, корпус 3, кв. 2. кадастровый номер 62:29:0080098:7773 (Дополнительная информация ПРОДАЕТСЯ...
    • 41 м²
    • 1-ком
    • 1/23 эт.
    4 329 011 Р
    Агент
    +7 (923) Показать номер
    Посмотреть контакты
    2-комнатная квартира: Рязань, Сенная улица, 3 (40.8 м) - Фото 1
    2-комнатная квартира: Рязань, Сенная улица, 3 (40.8 м) - Фото 2
    2-комнатная квартира, общая площадь 40м², жилая 26м², кухня 6м²

    Продается отличная квартира в центре города -Отличный вариант для жизни так и приобретения для студента .Все учебные вузы в шаговой доступности . -Хорошая инфраструктура Дом кирпичный, центральное отопление . -Парки ,рестораны ,библиотеки ,магазины...
    • 40 м²
    • 2-ком
    • 5/9 эт.
    4 500 000 Р
    Агент
    +7 (910) Показать номер
    Посмотреть контакты
    Продажа квартиры, Рязань - Фото 1
    Продажа квартиры, Рязань - Фото 2
    Продажа квартиры, Рязань - Фото 3
    Продажа квартиры, Рязань - Фото 4
    Продажа квартиры, Рязань - Фото 5
    Продажа квартиры, Рязань - Фото 6
    Продажа квартиры, Рязань - Фото 7
    Продажа квартиры, Рязань - Фото 8
    Продажа квартиры, Рязань - Фото 9
    Продажа квартиры, Рязань - Фото 10
    Продажа квартиры, Рязань - Фото 11
    Продажа квартиры, Рязань - Фото 12
    Продажа квартиры, Рязань - Фото 13
    Продажа квартиры, Рязань - Фото 14
    Продажа квартиры, Рязань - Фото 15
    Продажа квартиры, Рязань - Фото 16
    1-комнатная квартира, общая площадь 29.9м², жилая 19.0м², кухня 7.0м²

    Код объекта: 2017184.Продается однокомнатная квартира в микрорайоне Олимпийский городок дом 2. Квартира уютная,теплая. Сделан ремонт. В квартире остается вся мебель и техника.Без долгов и обременений.Один взрослы собственник, быстрый выход на сделку!
    • 29.9 м²
    • 1-ком
    • 24/25 эт.
    • монолит
    4 500 000 Р
    Агент
    +7 (491) Показать номер
    Посмотреть контакты
    Продажа квартиры, Рязань, ул. Магистральная - Фото 1
    Продажа квартиры, Рязань, ул. Магистральная - Фото 2
    Продажа квартиры, Рязань, ул. Магистральная - Фото 3
    Продажа квартиры, Рязань, ул. Магистральная - Фото 4
    Продажа квартиры, Рязань, ул. Магистральная - Фото 5
    Продажа квартиры, Рязань, ул. Магистральная - Фото 6
    Продажа квартиры, Рязань, ул. Магистральная - Фото 7
    Продажа квартиры, Рязань, ул. Магистральная - Фото 8
    Продажа квартиры, Рязань, ул. Магистральная - Фото 9
    Продажа квартиры, Рязань, ул. Магистральная - Фото 10
    Продажа квартиры, Рязань, ул. Магистральная - Фото 11
    Продажа квартиры, Рязань, ул. Магистральная - Фото 12
    Продажа квартиры, Рязань, ул. Магистральная - Фото 13
    Продажа квартиры, Рязань, ул. Магистральная - Фото 14
    Продажа квартиры, Рязань, ул. Магистральная - Фото 15
    Продажа квартиры, Рязань, ул. Магистральная - Фото 16
    Продажа квартиры, Рязань, ул. Магистральная - Фото 17
    Продажа квартиры, Рязань, ул. Магистральная - Фото 18
    Продажа квартиры, Рязань, ул. Магистральная - Фото 19
    2-комнатная квартира, общая площадь 51.4м², жилая 28.7м², кухня 7.8м²

    Код объекта: 1559461.В тихом, зелёном районе Приокский продаётся двухкомнатная квартира. Дом кирпичный, не угловая, распашонка. Выполнен качественный ремонт, установлены пластиковые окна, радиаторы и проводка поменяны, что позволит вам сразу заселиться...
    • 51.4 м²
    • 2-ком
    • 5/5 эт.
    • кирпичный
    4 300 000 Р
    Агент
    +7 (491) Показать номер
    Посмотреть контакты

    Не нашли подходящего объявления?

    Оставьте заявку, и наши риэлторы подберут квартиру в районе Рязани

    (0)