2 800 000 Р 36 530 $ или 31 050

Информация о квартире

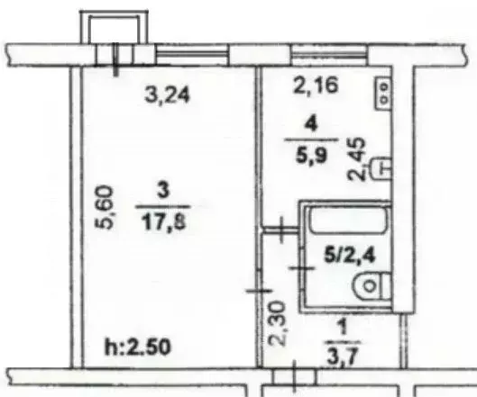
30 м2
Площадь
15 м2
Жилая
6 м2
Кухня
1
Комната
5
Этаж
5
Этажность

Дополнительная информация

Тип дома
кирпичный
Развернуть
Агент
+7 (980) 501-83-21
Начать чат с агентом

1-к кв. Рязанская область, Рязань Кальная ул., 40 (30.0 м)

Продается 1-комнатная квартира на улице Кальной. Отличное предложение по цене для этой площади и одного из самых развитых районов города.Квартира в хорошем жилом состоянии. Можно заехать и жить сразу, без срочных вложений и ремонта здесь и сейчас . При этом остается потенциал в будущем сделать обновление под себя, не переплачивая на старте.Ключевые преимущества:• Хорошее состояние. Квартира ухоженная и пригодна для комфортного проживания.• Выгодная цена. Редкое сочетание стоимости, площади и локации.• Отличный район. Развитая инфраструктура и удобная транспортная доступность.• Чистые документы. Без обременений, быстрый и понятный выход на сделку.Локация действительно сильная и делает этот объект особенно привлекательным. В пешей доступности есть все необходимое для жизни:• Продуктовые магазины у дома, гипермаркет Глобус , строительный магазин Лемана Про .• Детский сад 41, школы 73 и 76.• Остановка общественного транспорта всего в 350 метрах от дома.• Удобный выезд на Северную окружную дорогу и Касимовское шоссе, что экономит время на ежедневных поездках.Кому подойдет:• Практичным покупателям, которые выбирают локацию и цену, а не переплату за косметический ремонт.• Инвесторам. Район стабильно востребован для аренды, объект легко сдается и при необходимости можно повысить доходность легким обновлением.• В качестве первого жилья для молодой семьи или самостоятельного человека.Если вы ищете разумную покупку в сильном районе без лишних рисков, этот вариант стоит посмотреть.Звоните, договоримся о просмотре и обсудим условия.Арт.

Читать полностью

    Для того, чтобы купить однокомнатную квартиру по адресу: Рязань, ул. Кальная, 40, позвоните по телефону +7 (980) 501-83-21. Торопитесь! Объявление №30093063954 о продаже однокомнатной квартиры опубликовано 08 февраля 2026.

    Позвонить Написать
    2 800 000 Р36 530 $ или 31 050
    Агент
    +7 (980) 501-83-21
    Начать чат с агентом
    Похожие предложения
    1-к кв. Рязанская область, Рязань Кальная ул., 18к1 (29.7 м) - Фото 1
    1-к кв. Рязанская область, Рязань Кальная ул., 18к1 (29.7 м) - Фото 2
    1-комнатная квартира, общая площадь 29м², жилая 17м², кухня 6м²

    Продажа 1 комнатная квартира. Рязань, Советский округ район, ул. Кальная, дом 18к1, этаж 2 из 5, высота потолков 2.5 м.., отопление центральное. Общая площадь 29.7 кв.м.., жилая площадь 17.5 кв.м.., площадь кухни 6.5 кв.м., состояние хорошее, санузел...
    • 29 м²
    • 1-ком
    • 2/5 эт.
    2 800 000 Р
    Агент
    +7 (915) Показать номер
    Посмотреть контакты
    1-к кв. Рязанская область, Рязань ул. Новоселов, 25к1 (30.0 м) - Фото 1
    1-к кв. Рязанская область, Рязань ул. Новоселов, 25к1 (30.0 м) - Фото 2
    1-комнатная квартира, общая площадь 30м², жилая 17м², кухня 6м²

    Современная квартира в тихой и зеленом районе Дашково-Песочни Расположение - удачное Состояние - прекрасное Цена - лучшая Квартира подойдет для сдачи или проживания.Дом на второй линии от улицы Новоселов - соответственно у Вас тишина, покой и воздух чище.Покупателю...
    • 30 м²
    • 1-ком
    • 4/5 эт.
    • блочный
    2 790 000 Р
    Агент
    +7 (915) Показать номер
    Посмотреть контакты
    Студия Рязанская область, Рязань Олимпийский городок мкр, 4 (22.0 м) - Фото 1
    Студия Рязанская область, Рязань Олимпийский городок мкр, 4 (22.0 м) - Фото 2
    студия, общая площадь 22м², жилая 16м², кухня 1м²

    СРОЧНАЯ ПРОДАЖА Продается студия площадью 22 кв м в Олимпийском городке, д. 4. Этаж 2; Санузел совмещённый; Лоджия тёплая.Материал стен: монолитно-кирпичный; Отопление: автономная котельная, установлены счетчики расхода тепловой энергии;Лифты: 3 пассажирских;Парковка:...
    • 22 м²
    • студия-ком
    • 2/27 эт.
    • монолит
    2 799 000 Р
    Агент
    +7 (915) Показать номер
    Посмотреть контакты
    1-комнатная квартира: Рязань, улица Островского, 33 (30.4 м) - Фото 1
    1-комнатная квартира: Рязань, улица Островского, 33 (30.4 м) - Фото 2
    1-комнатная квартира, общая площадь 30м², жилая 17м², кухня 6м²

    Продается 1-комнат.квартира, не угловая, окна ПВХ + балкон , трубы новые, счетчики на воду. Бытовая техника в подарок новому владельцу.Чистый подъезд, никто не проживает, освобождена. Один взрослый собственник. Без долгов и обременений.Развитая инфраструктура...
    • 30 м²
    • 1-ком
    • 3/5 эт.
    2 800 000 Р
    Агент
    +7 (915) Показать номер
    Посмотреть контакты
    2-к кв. Рязанская область, Рязань ул. Островского, 28 (42.0 м) - Фото 1
    2-к кв. Рязанская область, Рязань ул. Островского, 28 (42.0 м) - Фото 2
    2-комнатная квартира, общая площадь 42м², жилая 27м², кухня 6м²

    Ищете уютное гнёздышко в отличном месте? Представляем вам прекрасную 2-комнатную квартиру в хорошем районе города, всего в двух шагах от центра Квартира готова к проживанию, но при этом ждет своих новых хозяев, чтобы потихоньку воплотить в ней все свои...
    • 42 м²
    • 2-ком
    • 1/4 эт.
    • блочный
    2 790 000 Р
    Агент
    +7 (915) Показать номер
    Посмотреть контакты

    Не нашли подходящего объявления?

    Оставьте заявку, и наши риэлторы подберут квартиру в районе Рязани

    (0)