Россия, Рязанская область, Рязань, ул. 2-я Новоселковская, 4
5 450 000 Р 70 670 $ или 59 870

Информация о квартире

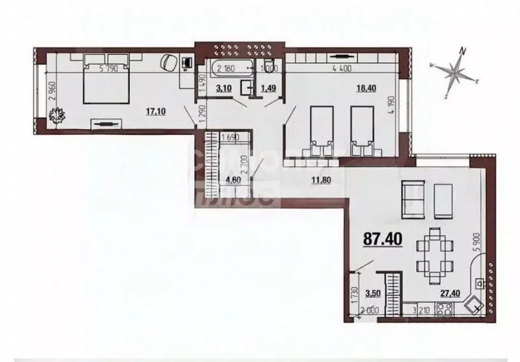
87 м2
Площадь
35 м2
Жилая
27 м2
Кухня
2
Комнаты
1
Этаж
4
Этажность

Дополнительная информация

Тип дома
кирпичный
Развернуть
Агент
+7 (915) 601-68-89
Начать чат с агентом

2-к кв. Рязанская область, Рязань ул. 2-я Новоселковская, 4 (87.4 м)

В продаже квартира, расположеная в кирпичном доме 2017 года с индивидуальным отоплением и ремонтом от застройщика, где вы сами можете продумать под себя дизайн интерьера по вашему вкусу.. Продуманная планировка с кладовой, раздельным санузлом, просторной кухней-гостинной, двумя жилыми комнатами правильной формы, которые с комфортом разместят всю Вашу семью. Сам дом очень теплый, в квартире также установлены качественные оконные стеклопакеты, новые радиаторы и так как дом построен только в 2017 году в квартире новая сантехника, электрика и все необходимые коммуникации. В жилом комплексе проживают много семей с детьми, все соседи очень приветливые, отзывчивые и просто доверительная атмосфера.Бесспорные плюсы:Самая низкая цена за квадратный метр квартиры с ИНДИВИДУАЛЬНЫМ отоплением,малоэтажная застройка домов из кирпича,всегда есть парковочное место,просторные жилые комнаты и вместительная кухня-гостинная,рязанская прописка,остановка общественного транспорта в 6 минутах хотьбы.Здесь вы будете проживать в городе, но в уединении с природой. В жилом комплексе Смайлино вы всегда найдете свободное место для своего автотранспорта, придворовая территория имеет зоны отдыха и небольшую детскую площадку. Расположение также является большим преимуществом, так как удобная транспортная развязка и остановка общественного транспорта буквально под рукой . Вы сможете наслаждаться прогулками по зелёным зонам, не отказываясь от удобства городской инфраструктуры.Подробную информацию об указанном объекте недвижимости уточняйте по телефону или в офисе компании.Звоните Арт.

Читать полностью

    Для того, чтобы купить двухкомнатную квартиру по адресу: Рязань, ул. 2-я Новоселковская, 4, позвоните по телефону +7 (915) 601-68-89. Торопитесь! Объявление №30093039487 о продаже двухкомнатной квартиры опубликовано 2 дня назад.

    Позвонить Написать
    5 450 000 Р70 670 $ или 59 870
    Агент
    +7 (915) 601-68-89
    Начать чат с агентом
    Похожие предложения
    1-к кв. Рязанская область, Рязань Олимпийский городок мкр, 2 (36.7 м) - Фото 1
    1-к кв. Рязанская область, Рязань Олимпийский городок мкр, 2 (36.7 м) - Фото 2
    1-комнатная квартира, общая площадь 36м², жилая 16м², кухня 12м²

    Код объекта: 2030822.Выгодная покупка в престижном районе Рязани Продаётся уютная однокомнатная квартира в новом современном микрорайоне Олимпийский Городок. Она расположена на шестом этаже 25-этажного монолитного дома, построенного в 2019 году. Квартира...
    • 36 м²
    • 1-ком
    • 6/25 эт.
    • монолит
    5 500 000 Р
    Агент
    +7 (980) Показать номер
    Посмотреть контакты
    1-к кв. Рязанская область, Рязань Славянский просп., 6 (46.9 м) - Фото 1
    1-к кв. Рязанская область, Рязань Славянский просп., 6 (46.9 м) - Фото 2
    1-комнатная квартира, общая площадь 46м², жилая 11м², кухня 23м²

    Арт.Продаётся уютная однокомнатная квартира в Рязани Адрес: г. Рязань, Славянский проспект, д. 6.Ищете идеальное место для жизни? Эта квартира — именно то, что вам нужно Просторная, светлая и очень уютная — она станет вашим личным островком комфорта.Что...
    • 46 м²
    • 1-ком
    • 5/9 эт.
    • кирпичный
    5 600 000 Р
    Агент
    +7 (910) Показать номер
    Посмотреть контакты
    4-к кв. Рязанская область, Рязань Шереметьевский проезд, 14 (121.0 м) - Фото 1
    4-к кв. Рязанская область, Рязань Шереметьевский проезд, 14 (121.0 м) - Фото 2
    4-комнатная квартира, общая площадь 121м², жилая 68м², кухня 13м²

    Сообщите специалисту номер объекта 638180 **Просторная квартира для большой и дружной семьи в центре Дашково-Песочни**Квартиры в этом доме продаются крайне редко. Это единственный дом с уникальными планировками:* холл площадью 26 квадратных метров;*...
    • 121 м²
    • 4-ком
    • 2/4 эт.
    • кирпичный
    5 500 000 Р
    Агент
    +7 (910) Показать номер
    Посмотреть контакты
    1-комнатная квартира: Рязань, улица Новосёлов, 45к1 (42.6 м) - Фото 1
    1-комнатная квартира: Рязань, улица Новосёлов, 45к1 (42.6 м) - Фото 2
    1-комнатная квартира, общая площадь 42м², кухня 18м²

    Предлагаем к покупке отличную квартиру формата ЕВРО 2 (спальня и просторная кухня-гостиная около 18 кв.м.) площадью 42,6 м (с лоджией — 46 м).Функциональная планировка и современная отделка делают это жильё идеальным вариантом для комфортной жизни. Походит...
    • 42 м²
    • 1-ком
    • 1/26 эт.
    5 500 000 Р
    Агент
    +7 (910) Показать номер
    Посмотреть контакты
    2-к кв. Рязанская область, Рязань Московский р-н, проезд 4-й ... - Фото 1
    2-к кв. Рязанская область, Рязань Московский р-н, проезд 4-й ... - Фото 2
    2-комнатная квартира, общая площадь 61м², жилая 40м², кухня 8м²

    2-комнатная квартира полностью готова к покупке • Кирпичный теплый 10-этажный дом • Две изолированные просторные комнаты • Зал 24 кв.м с двумя большими окнами, что позволяет сделать современное зонирование • сделан качественный ремонт в ванной комнате,...
    • 61 м²
    • 2-ком
    • 9/10 эт.
    • кирпичный
    5 585 000 Р
    Агент
    +7 (915) Показать номер
    Посмотреть контакты

    Не нашли подходящего объявления?

    Оставьте заявку, и наши риэлторы подберут квартиру в районе Рязани

    (0)