13 000 000 Р 166 200 $ или 141 200

Информация о квартире

106 м2
Площадь
53 м2
Жилая
14 м2
Кухня
3
Комнаты
11
Этаж
17
Этажность
Развернуть
Агент
+7 (980) 562-90-57
Начать чат с агентом

3-к кв. Рязанская область, Рязань Первомайский просп., 70к1 (106.5 м)

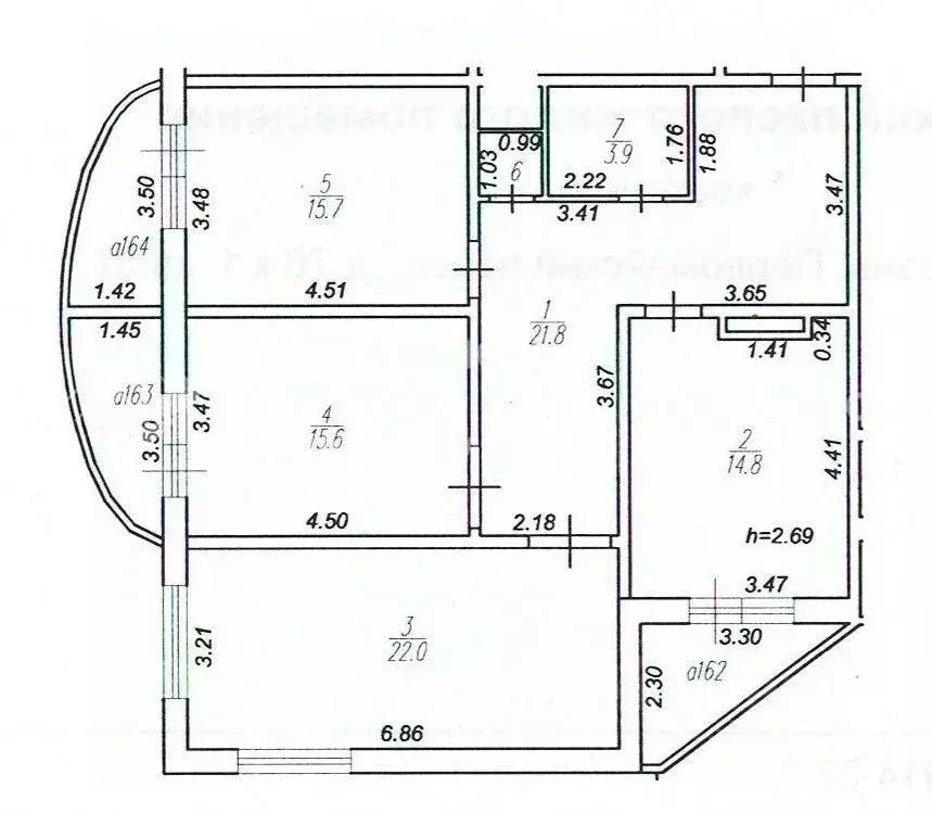
Код объекта: 1976054.Исключительная возможность для тех, кто ценит комфорт и безопасность — просторная трёхкомнатная квартира в Рязани на Первомайском проспекте, 70к1.Эта квартира — идеальное решение для большой семьи или тех, кто предпочитает много пространства.Общая площадь квартиры вместе с тремя остекленными лоджиями составляет 106,5 квадратных метров, из которых 53,3 квадратных метра занимает жилая площадь. Три изолированные комнаты с площадью 15,7, 15,6 и 22 квадратных метра позволят каждому члену семьи найти своё пространство.Высота потолков 2,6 метра создаёт ощущение простора и свободы.Расположение квартиры на 11 этаже с тремя лоджиями открывает вид как на улицу, так и во двор. Наличие трёх лоджий — это не только дополнительное пространство для отдыха, но и возможность организовать небольшие зоны для хранения или отдыха.Косметический ремонт позволит новым владельцам воплотить свои дизайнерские идеи.Огороженная территория добавляет чувство безопасности и уюта.Не упустите шанс стать обладателем этой прекрасной квартиры. Звоните нам прямо сейчас, чтобы узнать больше и записаться на просмотр. Мы гарантируем безопасную сделку и юридическую поддержку нашим клиентам. Поможем одобрить ипотеку с сниженной ставкой.

Читать полностью

    Для того, чтобы купить трехкомнатную квартиру по адресу: Рязань, Первомайский пр-кт., 70к1, позвоните по телефону +7 (980) 562-90-57. Торопитесь! Объявление №30092524679 о продаже трехкомнатной квартиры опубликовано Вчера.

    Позвонить Написать
    13 000 000 Р166 200 $ или 141 200
    Агент
    +7 (980) 562-90-57
    Начать чат с агентом
    Похожие предложения
    2-к кв. Рязанская область, Рязань Первомайский просп., 51 (88.0 м) - Фото 1
    2-к кв. Рязанская область, Рязань Первомайский просп., 51 (88.0 м) - Фото 2
    2-комнатная квартира, общая площадь 88м², жилая 41м², кухня 15м²

    Эксклюзивное предложение в самом центре города Малоквартирный кирпичный дом высокого класса с закрытой территорией Продается двухкомнатная квартира с индивидуальным отоплением. Площадь квартиры 74,6 кв.м, плюс две большие лоджии по 6.6 кв.м. С...
    • 88 м²
    • 2-ком
    • 7/8 эт.
    • кирпичный
    14 000 000 Р
    Агент
    +7 (910) Показать номер
    Посмотреть контакты
    2-к кв. Рязанская область, Рязань Первомайский просп., 76к3 (82.4 м) - Фото 1
    2-к кв. Рязанская область, Рязань Первомайский просп., 76к3 (82.4 м) - Фото 2
    2-комнатная квартира, общая площадь 82м², жилая 33м², кухня 18м²

    Код объекта: 1776727.ВАША ИДЕАЛЬНАЯ КВАРТИРА Уникальное предложение на рынке недвижимости Рязани — просторная и комфортабельная квартира в монолитной новостройке 2013 года. Расположена по адресу Первомайский проспект, 76к3 в самом сердце города Рязани...
    • 82 м²
    • 2-ком
    • 3/18 эт.
    • монолит
    13 850 000 Р
    Агент
    +7 (980) Показать номер
    Посмотреть контакты
    3-к кв. Рязанская область, Рязань Первомайский просп., 76к3 (129.55 м) - Фото 1
    3-к кв. Рязанская область, Рязань Первомайский просп., 76к3 (129.55 м) - Фото 2
    3-комнатная квартира, общая площадь 129м², жилая 61м², кухня 21м²

    Код объекта: 1895670.В продажу поступила большая квартира на Первомайском проспекте, 76к3, от топового застройщика Рязани - ГК ЗЕЛЕНЫЙ САД Уникальное предложение для тех, кто ищет новостройку в сданном доме.Все дизайнерские решения Вы сможете воплотить...
    • 129 м²
    • 3-ком
    • 3/19 эт.
    • монолит
    12 000 000 Р
    Агент
    +7 (980) Показать номер
    Посмотреть контакты
    2-комнатная квартира: Рязань, Первомайский проспект, 51 (88 м) - Фото 1
    2-комнатная квартира: Рязань, Первомайский проспект, 51 (88 м) - Фото 2
    2-комнатная квартира, общая площадь 88м², жилая 41м², кухня 15м²

    Эксклюзивное предложение в самом центре города Малоквартирный кирпичный дом высокого класса с закрытой территорией Продается двухкомнатная квартира с индивидуальным отоплением. Площадь квартиры 74,6 кв.м, плюс две большие лоджии по 6.6 кв.м. С...
    • 88 м²
    • 2-ком
    • 7/8 эт.
    14 000 000 Р
    Агент
    +7 (906) Показать номер
    Посмотреть контакты
    3-к кв. Рязанская область, Рязань Быстрецкая ул., 17 (103.0 м) - Фото 1
    3-к кв. Рязанская область, Рязань Быстрецкая ул., 17 (103.0 м) - Фото 2
    3-комнатная квартира, общая площадь 103м², жилая 42м², кухня 18м²

    Вашему вниманию предлагается шикарная 2х-комнатная квартира в кирпичном доме с индивидуальном отоплением, с функционалом 3х-комнатной квартиры, общей площадью 103 кв.м. В центре самого развивающего и перспективного микрорайона города (мкр Кальное)....
    • 103 м²
    • 3-ком
    • 6/6 эт.
    • кирпичный
    12 900 000 Р
    Агент
    +7 (910) Показать номер
    Посмотреть контакты

    Не нашли подходящего объявления?

    Оставьте заявку, и наши риэлторы подберут квартиру в районе Рязани

    (0)