Россия, Рязанская область, Рязань, Еврокласс жилой комплекс
4 900 000 Р 60 330 $ или 52 220

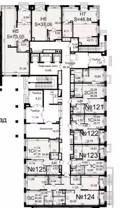
Информация о квартире

37 м2
Площадь
12 м2
Жилая
16 м2
Кухня
1
Комната
6
Этаж
25
Этажность

Дополнительная информация

Тип дома
монолит
Развернуть
Агент
+7 (910) 642-49-12
Начать чат с агентом

1-к кв. Рязанская область, Рязань Еврокласс жилой комплекс (37.2 м)

Сдача дома через 2 месяца Предлагается к продаже 1 ком смарт квартира в ЖК Еврокласс 4. Общая плащадь 37,2м.Индивидуальное отопление. Великолепный вид на поля и восход солнца Шикарные входные группы подъездов, отличное местоположение дома.ЖК Еврокласс от ГК Зелёный сад.Для тех , кто еще думает и сомневается-Пожалуй это лучший двор в городе С благоустроенной прилегающей территорией , с современным , безопасным и красивым оборудованием для детей и взрослых.Ни у кого нет ничего подобного Территория двора- стилобат:с самой большой детской песочницей, с кварцевым песком , где можно устраивать эксперименты с водой и познавательные сенсорные игры;С зоной активных прогулок.С инновационными скамейками, оснащенными системой подогрева , зарядкой для телефона.Спортивными площадками и трибунами,с ландшафтным озеленением и множеством цветов .Звоните Быстрый выход на сделку Объект 902766

Читать полностью
    Позвонить Написать
    4 900 000 Р60 330 $ или 52 220
    Агент
    +7 (910) 642-49-12
    Начать чат с агентом
    Похожие предложения в Рязани
    1-к кв. Рязанская область, Рязань ул. Чкалова (37.52 м) - Фото 1
    1-к кв. Рязанская область, Рязань ул. Чкалова (37.52 м) - Фото 2
    1-комнатная квартира, общая площадь 37м², жилая 11м², кухня 15м²

    1 комн. квартира в ЖК Новое измерение , площадь 37.52 м, жилая 11.31 м, кухня 15.47 м
    • 37 м²
    • 1-ком
    • 1/11 эт.
    4 802 560 Р
    Агент
    +7 (930) Показать номер
    Посмотреть контакты
    1-к кв. Рязанская область, Рязань ул. Чкалова (35.93 м) - Фото 1
    1-к кв. Рязанская область, Рязань ул. Чкалова (35.93 м) - Фото 2
    1-комнатная квартира, общая площадь 35м², жилая 11м², кухня 14м²

    1 комн. квартира в ЖК Новое измерение , площадь 35.93 м, жилая 11.35 м, кухня 14.6 м
    • 35 м²
    • 1-ком
    • 2/11 эт.
    4 850 550 Р
    Агент
    +7 (930) Показать номер
    Посмотреть контакты
    1-к кв. Рязанская область, Рязань ул. Чкалова (35.82 м) - Фото 1
    1-к кв. Рязанская область, Рязань ул. Чкалова (35.82 м) - Фото 2
    1-комнатная квартира, общая площадь 35м², жилая 11м², кухня 14м²

    1 комн. квартира в ЖК Новое измерение , площадь 35.82 м, жилая 10.97 м, кухня 14.83 м
    • 35 м²
    • 1-ком
    • 1/11 эт.
    4 835 700 Р
    Агент
    +7 (930) Показать номер
    Посмотреть контакты
    1-к кв. Рязанская область, Рязань ул. Чкалова (35.93 м) - Фото 1
    1-к кв. Рязанская область, Рязань ул. Чкалова (35.93 м) - Фото 2
    1-комнатная квартира, общая площадь 35м², жилая 11м², кухня 14м²

    1 комн. квартира в ЖК Новое измерение , площадь 35.93 м, жилая 11.35 м, кухня 14.6 м
    • 35 м²
    • 1-ком
    • 2/11 эт.
    4 850 550 Р
    Агент
    +7 (930) Показать номер
    Посмотреть контакты
    1-к кв. Рязанская область, Рязань ул. Чкалова (35.77 м) - Фото 1
    1-к кв. Рязанская область, Рязань ул. Чкалова (35.77 м) - Фото 2
    1-комнатная квартира, общая площадь 35м², жилая 11м², кухня 14м²

    1 комн. квартира в ЖК Новое измерение , площадь 35.77 м, жилая 10.95 м, кухня 14.78 м
    • 35 м²
    • 1-ком
    • 1/11 эт.
    4 828 950 Р
    Агент
    +7 (930) Показать номер
    Посмотреть контакты

    Не нашли подходящего объявления?

    Оставьте заявку, и наши риэлторы подберут квартиру в новостройке в районе Рязани

    (0)