Реализация объекта недвижимости приостановлена

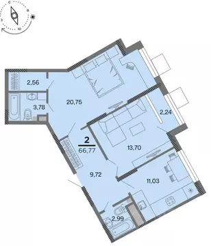
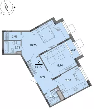
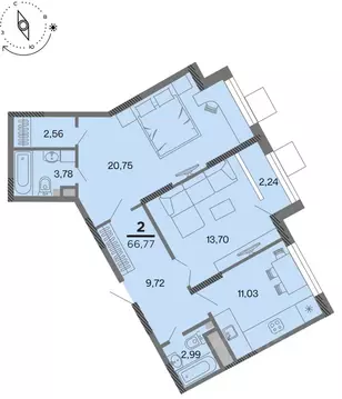
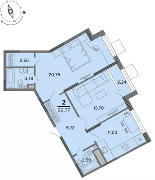
Информация о квартире

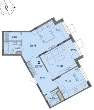
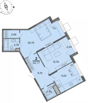
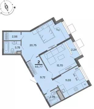
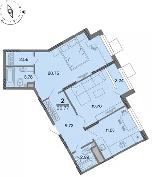
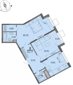
64.0 м2
Площадь
27.0 м2
Жилая
22.0 м2
Кухня
2
Комнаты
23
Этаж
25
Этажность
Развернуть

2-к кв. Рязанская область, Рязань ул. Ленинского Комсомола (64.29 м)

- электропроводка на медном кабеле 220 V с установкой электрического щита на лестничной площадке и распределительного щита в квартире;- штукатурка кирпичных стен кроме экрана ограждений лоджий, откосов дверных и оконных проемов, ниш прохождения стояков водопровода и канализации, стены из пазогребневых силикатных плит и участки монолитных конструкций, не штукатурятся;- стяжка пола, кроме пола лоджий;- шумоизоляция пола;- система отопления и горячего водоснабжения от крышной котельной с установкой приборов отопления;- установлен приточный клапан инфильтрационный вентиляционный (КИВ);- смонтированы внутриквартирные стояки водоснабжения и водоотведения (канализация) с установкой приборов учета. Разводка труб водоснабжения и водоотведения (канализация) до сантехнических приборов не производится, сантехнические приборы: унитаз, ванна, мойка, раковина и полотенцесушитель - не устанавливаются;- установлена силовая электрическая розетка для самостоятельной установки Участником электрической плиты;- оконные проемы без выхода на лоджии остеклены ПВХ-профилем с отливом без подоконника; оконные проемы с выходом на лоджии остеклены ПВХ-профилем, без отлива и подоконника; лоджии остеклены ПВХ профилем, москитные сетки не предусмотрены, места запенивания монтажной пеной и укрывания гидроизоляционным герметиком не штукатурятся;- установлена входная металлическая дверь;- установлена домофонная трубка, обеспечен доступ для подключения к телевизионному вещанию, интернету и телефонной линии.

Читать полностью

    Реализация объекта недвижимости приостановлена

    Не нашли подходящего объявления?

    Оставьте заявку, и наши риэлторы подберут квартиру в новостройке в районе Рязани

    (0)