5 043 200 Р 65 520 $ или 56 100

Информация о квартире

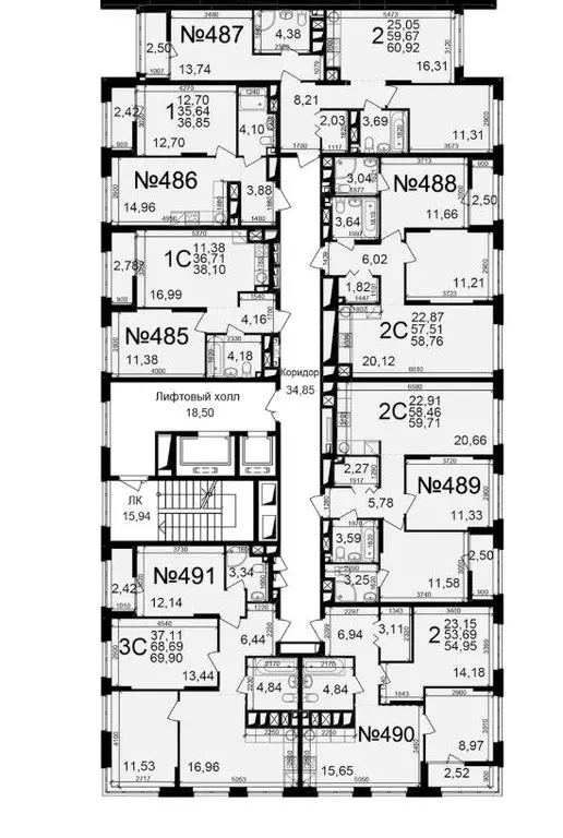
38 м2
Площадь
10 м2
Жилая
18 м2
Кухня
1
Комната
19
Этаж
25
Этажность
Развернуть
Агент
+7 (938) 541-17-23
Начать чат с агентом

1-к кв. Рязанская область, Рязань ул. Чкалова (38.15 м)

- электропроводка на медном кабеле 220 V с установкой электрического щита на лестничной площадке и распределительного щита в квартире;- штукатурка кирпичных стен, кроме стен лоджий, откосов дверных и оконных проемов, ниш прохождения стояков водопровода и канализации. Участки монолитных конструкций не штукатурятся;- стяжка пола;- шумоизоляция пола;- система отопления и горячего водоснабжения от крышной котельной с установкой прибора учета расхода тепла;- установлены приборы (радиаторы)отопления;- установлена силовая электрическая розетка для самостоятельной установки Участником электрической плиты;- смонтированы внутриквартирные стояки водоотведения (канализация), точки подключения холодного и горячего водоснабжения от коллекторной разводки (коллектор на лестничной площадке) с установкой приборов учета. Разводка труб водоснабжения и водоотведения (канализация) до сантехнических приборов не производится, сантехнические приборы: унитаз, ванна, мойка, раковина- не устанавливаются;- установлена электрическая розетка для подключения полотенцесушителя. Полотенцесушитель не устанавливается;- оконные проемы без выхода на лоджии остеклены ПВХ-профилем с отливом без подоконников; оконные проемы с выходом на лоджии остеклены ПВХ-профилем, без отлива без подоконника; лоджии остеклены, москитные сетки не предусмотрены, места запенивания монтажной пеной и укрывания гидроизоляционным герметиком не штукатурятся;- установлена входная металлическая дверь;- установлен домофон.

Читать полностью
    Позвонить Написать
    5 043 200 Р65 520 $ или 56 100
    Агент
    +7 (938) 541-17-23
    Начать чат с агентом
    Похожие предложения в Рязани
    1-к кв. Рязанская область, Рязань ул. Чкалова (36.71 м) - Фото 1
    1-к кв. Рязанская область, Рязань ул. Чкалова (36.71 м) - Фото 2
    1-комнатная квартира, общая площадь 36м², жилая 11м², кухня 17м²

    - электропроводка на медном кабеле 220 V с установкой электрического щита на лестничной площадке и распределительного щита в квартире;- штукатурка кирпичных стен, кроме стен лоджий, откосов дверных и оконных проемов, ниш прохождения стояков водопровода...
    • 36 м²
    • 1-ком
    • 18/25 эт.
    4 953 000 Р
    Агент
    +7 (938) Показать номер
    Посмотреть контакты
    1-к кв. Рязанская область, Рязань ул. Чкалова (36.71 м) - Фото 1
    1-к кв. Рязанская область, Рязань ул. Чкалова (36.71 м) - Фото 2
    1-комнатная квартира, общая площадь 36м², жилая 11м², кухня 17м²

    - электропроводка на медном кабеле 220 V с установкой электрического щита на лестничной площадке и распределительного щита в квартире;- штукатурка кирпичных стен, кроме стен лоджий, откосов дверных и оконных проемов, ниш прохождения стояков водопровода...
    • 36 м²
    • 1-ком
    • 21/25 эт.
    4 953 000 Р
    Агент
    +7 (938) Показать номер
    Посмотреть контакты
    1-к кв. Рязанская область, Рязань ул. Чкалова (37.26 м) - Фото 1
    1-к кв. Рязанская область, Рязань ул. Чкалова (37.26 м) - Фото 2
    1-комнатная квартира, общая площадь 37м², жилая 11м², кухня 17м²

    - электропроводка на медном кабеле 220 V с установкой электрического щита на лестничной площадке и распределительного щита в квартире;- штукатурка кирпичных стен, кроме стен лоджий, откосов дверных и оконных проемов, ниш прохождения стояков водопровода...
    • 37 м²
    • 1-ком
    • 9/25 эт.
    5 024 500 Р
    Агент
    +7 (938) Показать номер
    Посмотреть контакты
    1-к кв. Рязанская область, Рязань ул. Чкалова (37.26 м) - Фото 1
    1-к кв. Рязанская область, Рязань ул. Чкалова (37.26 м) - Фото 2
    1-комнатная квартира, общая площадь 37м², жилая 11м², кухня 17м²

    - электропроводка на медном кабеле 220 V с установкой электрического щита на лестничной площадке и распределительного щита в квартире;- штукатурка кирпичных стен, кроме стен лоджий, откосов дверных и оконных проемов, ниш прохождения стояков водопровода...
    • 37 м²
    • 1-ком
    • 2/25 эт.
    5 024 500 Р
    Агент
    +7 (938) Показать номер
    Посмотреть контакты
    1-к кв. Рязанская область, Рязань ул. Чкалова (36.71 м) - Фото 1
    1-к кв. Рязанская область, Рязань ул. Чкалова (36.71 м) - Фото 2
    1-комнатная квартира, общая площадь 36м², жилая 11м², кухня 17м²

    - электропроводка на медном кабеле 220 V с установкой электрического щита на лестничной площадке и распределительного щита в квартире;- штукатурка кирпичных стен, кроме стен лоджий, откосов дверных и оконных проемов, ниш прохождения стояков водопровода...
    • 36 м²
    • 1-ком
    • 15/25 эт.
    4 953 000 Р
    Агент
    +7 (938) Показать номер
    Посмотреть контакты

    Не нашли подходящего объявления?

    Оставьте заявку, и наши риэлторы подберут квартиру в новостройке в районе Рязани

    (0)