8 880 190 Р 110 200 $ или 94 780

Информация о квартире

70 м2
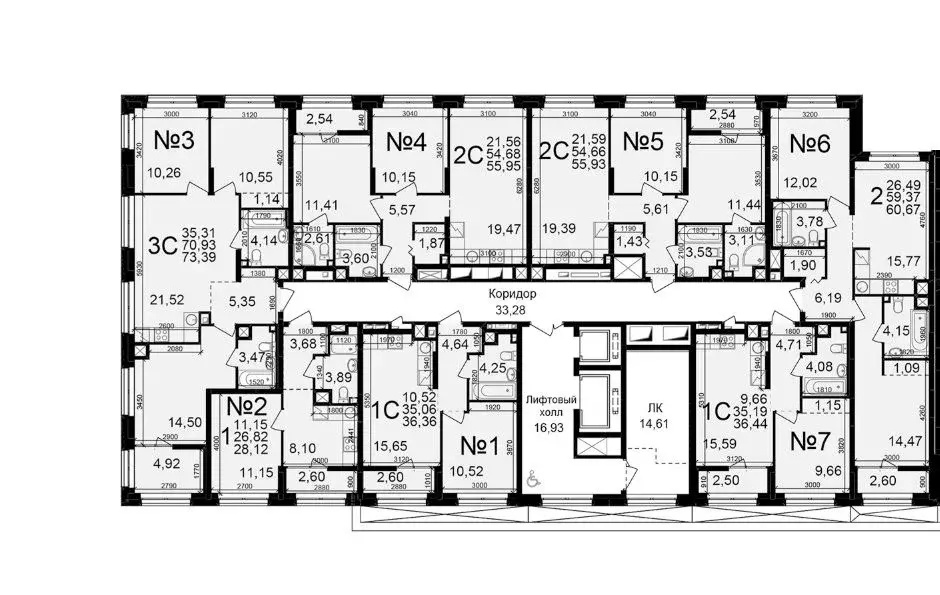
Площадь
35 м2
Жилая
21 м2
Кухня
3
Комнаты
6
Этаж
25
Этажность
Развернуть
Агент
+7 (938) 541-17-23
Начать чат с агентом

3-к кв. Рязанская область, Рязань ул. Чкалова (70.93 м)

- электропроводка на медном кабеле 220 V с установкой электрического щита на лестничной площадке и распределительного щита в квартире;- штукатурка кирпичных стен, кроме стен лоджий, откосов дверных и оконных проемов, ниш прохождения стояков водопровода и канализации. Участки монолитных конструкций не штукатурятся;- стяжка пола;- шумоизоляция пола;- система отопления и горячего водоснабжения от крышной котельной с установкой прибора учета расхода тепла;- установлены приборы (радиаторы)отопления;- установлена силовая электрическая розетка для самостоятельной установки Участником электрической плиты;- смонтированы внутриквартирные стояки водоотведения (канализация), точки подключения холодного и горячего водоснабжения от коллекторной разводки (коллектор на лестничной площадке) с установкой приборов учета. Разводка труб водоснабжения и водоотведения (канализация) до сантехнических приборов не производится, сантехнические приборы: унитаз, ванна, мойка, раковина- не устанавливаются;- установлена электрическая розетка для подключения полотенцесушителя. Полотенцесушитель не устанавливается;- оконные проемы без выхода на лоджии остеклены ПВХ-профилем с отливом без подоконников; оконные проемы с выходом на лоджии остеклены ПВХ-профилем, без отлива без подоконника; лоджии остеклены, москитные сетки не предусмотрены, места запенивания монтажной пеной и укрывания гидроизоляционным герметиком не штукатурятся;- установлена входная металлическая дверь;- установлен домофон.

Читать полностью
    Позвонить Написать
    8 880 190 Р110 200 $ или 94 780
    Агент
    +7 (938) 541-17-23
    Начать чат с агентом
    Похожие предложения в Рязани
    3-к кв. Рязанская область, Рязань ул. Чкалова (72.54 м) - Фото 1
    3-к кв. Рязанская область, Рязань ул. Чкалова (72.54 м) - Фото 2
    3-комнатная квартира, общая площадь 72м², жилая 37м², кухня 21м²

    - электропроводка на медном кабеле 220 V с установкой электрического щита на лестничной площадке и распределительного щита в квартире;- штукатурка кирпичных стен, кроме стен лоджий, откосов дверных и оконных проемов, ниш прохождения стояков водопровода...
    • 72 м²
    • 3-ком
    • 13/25 эт.
    8 950 370 Р
    Агент
    +7 (938) Показать номер
    Посмотреть контакты
    3-к кв. Рязанская область, Рязань ул. Чкалова (72.54 м) - Фото 1
    3-к кв. Рязанская область, Рязань ул. Чкалова (72.54 м) - Фото 2
    3-комнатная квартира, общая площадь 72м², жилая 37м², кухня 21м²

    - электропроводка на медном кабеле 220 V с установкой электрического щита на лестничной площадке и распределительного щита в квартире;- штукатурка кирпичных стен, кроме стен лоджий, откосов дверных и оконных проемов, ниш прохождения стояков водопровода...
    • 72 м²
    • 3-ком
    • 15/25 эт.
    8 950 370 Р
    Агент
    +7 (938) Показать номер
    Посмотреть контакты
    3-к кв. Рязанская область, Рязань ул. Чкалова (72.54 м) - Фото 1
    3-к кв. Рязанская область, Рязань ул. Чкалова (72.54 м) - Фото 2
    3-комнатная квартира, общая площадь 72м², жилая 37м², кухня 21м²

    - электропроводка на медном кабеле 220 V с установкой электрического щита на лестничной площадке и распределительного щита в квартире;- штукатурка кирпичных стен, кроме стен лоджий, откосов дверных и оконных проемов, ниш прохождения стояков водопровода...
    • 72 м²
    • 3-ком
    • 14/25 эт.
    8 950 370 Р
    Агент
    +7 (938) Показать номер
    Посмотреть контакты
    3-к кв. Рязанская область, Рязань ул. Чкалова (70.93 м) - Фото 1
    3-к кв. Рязанская область, Рязань ул. Чкалова (70.93 м) - Фото 2
    3-комнатная квартира, общая площадь 70м², жилая 35м², кухня 21м²

    - электропроводка на медном кабеле 220 V с установкой электрического щита на лестничной площадке и распределительного щита в квартире;- штукатурка кирпичных стен, кроме стен лоджий, откосов дверных и оконных проемов, ниш прохождения стояков водопровода...
    • 70 м²
    • 3-ком
    • 5/25 эт.
    8 880 190 Р
    Агент
    +7 (938) Показать номер
    Посмотреть контакты
    3-к кв. Рязанская область, Рязань ул. Чкалова (70.93 м) - Фото 1
    3-к кв. Рязанская область, Рязань ул. Чкалова (70.93 м) - Фото 2
    3-комнатная квартира, общая площадь 70м², жилая 35м², кухня 21м²

    - электропроводка на медном кабеле 220 V с установкой электрического щита на лестничной площадке и распределительного щита в квартире;- штукатурка кирпичных стен, кроме стен лоджий, откосов дверных и оконных проемов, ниш прохождения стояков водопровода...
    • 70 м²
    • 3-ком
    • 2/25 эт.
    8 880 190 Р
    Агент
    +7 (938) Показать номер
    Посмотреть контакты

    Не нашли подходящего объявления?

    Оставьте заявку, и наши риэлторы подберут квартиру в новостройке в районе Рязани

    (0)