Россия, Рязанская область, Рязань, Телецентр жилрайон
3 969 700 Р 48 930 $ или 41 740

Информация о квартире

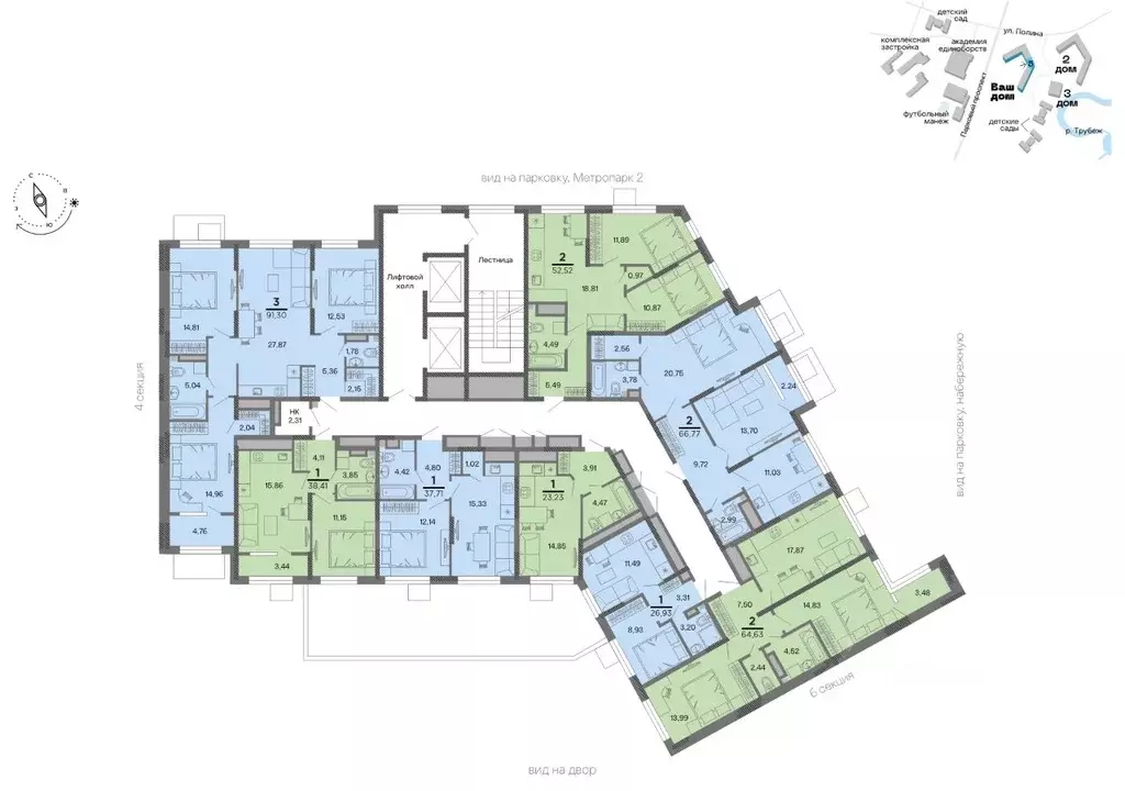
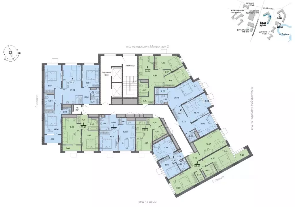
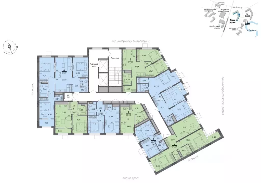
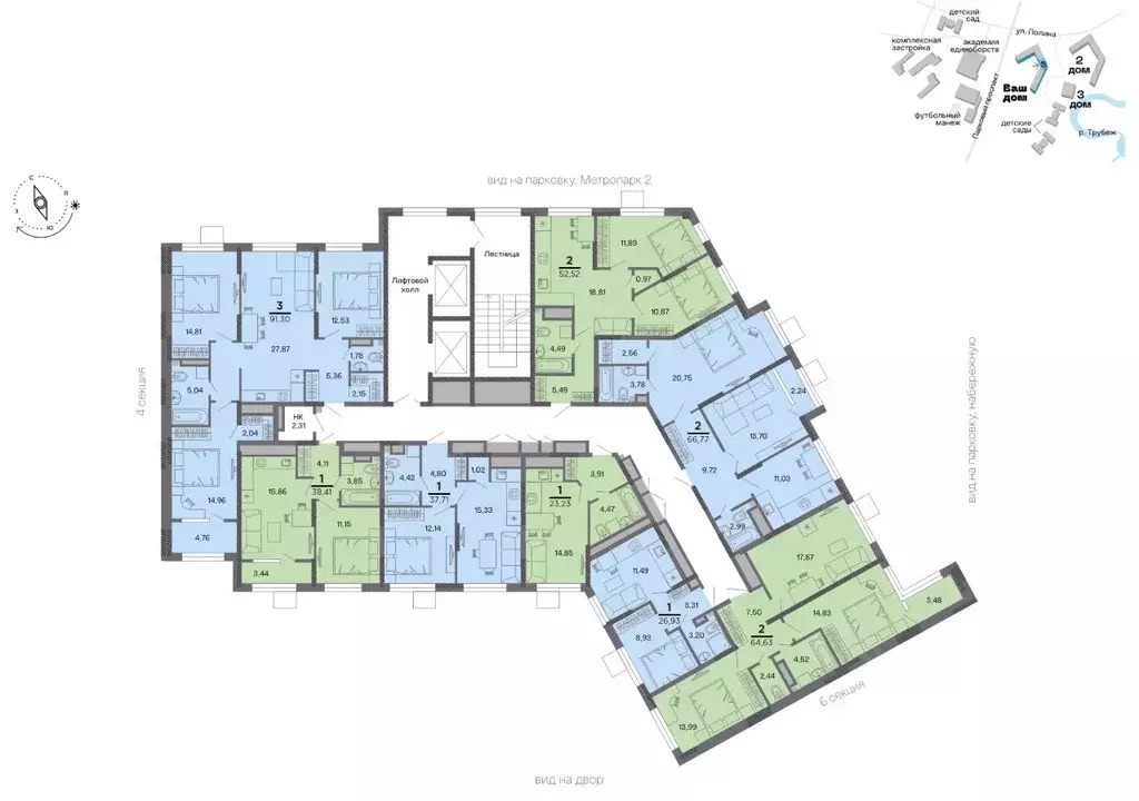
38 м2
Площадь
1
Комната
8
Этаж
9
Этажность
Развернуть
Агент
+7 (800) 333-03-43
Начать чат с агентом

1-к кв. Рязанская область, Рязань Телецентр жилрайон, (38.96 м)

Продаётся 1-комнатная квартира в строящемся доме (Корпус 1), срок сдачи: II-кв. 2027, общей площадью 38.96 кв.м., на 8 этаже. Дом на улице Разина представляет собой современное жилое здание с множеством удобств и высокими стандартами качества строительства. Каждый этаж в доме имеет высоту 2,55 метра от стяжки до плиты перекрытия, что обеспечивает комфортное пространство для жизни. В здании установлены два лифта: грузовой и пассажирский, что позволяет удобно и быстро перемещаться между этажами, а также решает проблемы транспортировки крупных предметов. Важной особенностью дома является остекление между лоджиями и жилыми помещениями. Оно выполнено из ПВХ-профиля на весь размер проема, что обеспечивает отличную звукоизоляцию и сохранение тепла. На лоджиях установлены приборы отопления, что делает их пригодными для использования в любое время года. Для дополнительного комфорта в коридорах проложен контур теплых полов, обеспечивающий уют и тепло даже в холодное время года. Электрическая проводка в доме выполнена с расчетом на возможность добавления дополнительных точек освещения без необходимости проведения дополнительных работ. Это особенно удобно для тех, кто хочет изменить или дополнить интерьер своей квартиры. Отдельное внимание уделено системе отопления: подводка радиаторов сделана так, что трубы выходят из стены, что не только эстетично, но и практично, так как упрощает уборку и делает пространство более свободным. Таким образом, дом на Разина сочетает в себе современные технологии и удобства, обеспечивая высокий уровень комфорта и безопасности для своих жителей. Каждая деталь в этом доме продумана до мелочей, чтобы создать идеальные условия для проживания.

Читать полностью
    Позвонить Написать
    3 969 700 Р48 930 $ или 41 740
    Агент
    +7 (800) 333-03-43
    Начать чат с агентом
    Похожие предложения в Рязани
    1-к кв. Рязанская область, Рязань Метропарк тер., Метропарк жилой ... - Фото 1
    1-к кв. Рязанская область, Рязань Метропарк тер., Метропарк жилой ... - Фото 2
    1-комнатная квартира, общая площадь 26м², жилая 8м²

    Современный и стильный жилой квартал Метропаркасположен в уникальной природной зоне поймы реки Трубеж в Московском районе города Рязани. Он занимает площадь 40га. Преимуществами ЖК Метропарк являются собственный парк 20га, набережная, развитая инфраструктура,...
    • 26 м²
    • 1-ком
    • 16/22 эт.
    3 991 175 Р
    Агент
    +7 (933) Показать номер
    Посмотреть контакты
    1-к кв. Рязанская область, Рязань Метропарк тер., Метропарк жилой ... - Фото 1
    1-к кв. Рязанская область, Рязань Метропарк тер., Метропарк жилой ... - Фото 2
    1-комнатная квартира, общая площадь 26м², жилая 8м²

    Современный и стильный жилой квартал Метропаркасположен в уникальной природной зоне поймы реки Трубеж в Московском районе города Рязани. Он занимает площадь 40га. Преимуществами ЖК Метропарк являются собственный парк 20га, набережная, развитая инфраструктура,...
    • 26 м²
    • 1-ком
    • 13/22 эт.
    3 991 175 Р
    Агент
    +7 (933) Показать номер
    Посмотреть контакты
    1-к кв. Рязанская область, Рязань Метропарк тер., Метропарк жилой ... - Фото 1
    1-к кв. Рязанская область, Рязань Метропарк тер., Метропарк жилой ... - Фото 2
    1-комнатная квартира, общая площадь 26м², жилая 8м²

    Современный и стильный жилой квартал Метропаркасположен в уникальной природной зоне поймы реки Трубеж в Московском районе города Рязани. Он занимает площадь 40га. Преимуществами ЖК Метропарк являются собственный парк 20га, набережная, развитая инфраструктура,...
    • 26 м²
    • 1-ком
    • 14/22 эт.
    3 991 175 Р
    Агент
    +7 (933) Показать номер
    Посмотреть контакты
    1-к кв. Рязанская область, Рязань Метропарк тер., Метропарк жилой ... - Фото 1
    1-к кв. Рязанская область, Рязань Метропарк тер., Метропарк жилой ... - Фото 2
    1-комнатная квартира, общая площадь 26м², жилая 8м²

    Современный и стильный жилой квартал Метропаркасположен в уникальной природной зоне поймы реки Трубеж в Московском районе города Рязани. Он занимает площадь 40га. Преимуществами ЖК Метропарк являются собственный парк 20га, набережная, развитая инфраструктура,...
    • 26 м²
    • 1-ком
    • 20/22 эт.
    3 991 175 Р
    Агент
    +7 (933) Показать номер
    Посмотреть контакты
    1-к кв. Рязанская область, Рязань Метропарк тер., Метропарк жилой ... - Фото 1
    1-к кв. Рязанская область, Рязань Метропарк тер., Метропарк жилой ... - Фото 2
    1-комнатная квартира, общая площадь 26м², жилая 8м²

    Современный и стильный жилой квартал Метропаркасположен в уникальной природной зоне поймы реки Трубеж в Московском районе города Рязани. Он занимает площадь 40га. Преимуществами ЖК Метропарк являются собственный парк 20га, набережная, развитая инфраструктура,...
    • 26 м²
    • 1-ком
    • 2/22 эт.
    3 991 175 Р
    Агент
    +7 (933) Показать номер
    Посмотреть контакты

    Не нашли подходящего объявления?

    Оставьте заявку, и наши риэлторы подберут квартиру в новостройке в районе Рязани

    (0)