Россия, Рязанская область, Рязань, Телецентр жилрайон

Реализация объекта недвижимости приостановлена

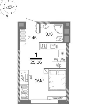
Информация о квартире

37.0 м2
Площадь
1
Комната
9
Этаж
9
Этажность
Развернуть

1-к кв. Рязанская область, Рязань Телецентр жилрайон, (37.03 м)

Продаётся 1-комнатная квартира в строящемся доме (Корпус 1), срок сдачи: II-кв. 2027, общей площадью 37.03 кв.м., на 9 этаже. Дом на улице Разина представляет собой современное жилое здание с множеством удобств и высокими стандартами качества строительства. Каждый этаж в доме имеет высоту 2,55 метра от стяжки до плиты перекрытия, что обеспечивает комфортное пространство для жизни. В здании установлены два лифта: грузовой и пассажирский, что позволяет удобно и быстро перемещаться между этажами, а также решает проблемы транспортировки крупных предметов. Важной особенностью дома является остекление между лоджиями и жилыми помещениями. Оно выполнено из ПВХ-профиля на весь размер проема, что обеспечивает отличную звукоизоляцию и сохранение тепла. На лоджиях установлены приборы отопления, что делает их пригодными для использования в любое время года. Для дополнительного комфорта в коридорах проложен контур теплых полов, обеспечивающий уют и тепло даже в холодное время года. Электрическая проводка в доме выполнена с расчетом на возможность добавления дополнительных точек освещения без необходимости проведения дополнительных работ. Это особенно удобно для тех, кто хочет изменить или дополнить интерьер своей квартиры. Отдельное внимание уделено системе отопления: подводка радиаторов сделана так, что трубы выходят из стены, что не только эстетично, но и практично, так как упрощает уборку и делает пространство более свободным. Таким образом, дом на Разина сочетает в себе современные технологии и удобства, обеспечивая высокий уровень комфорта и безопасности для своих жителей. Каждая деталь в этом доме продумана до мелочей, чтобы создать идеальные условия для проживания.

Читать полностью

    Реализация объекта недвижимости приостановлена

    Не нашли подходящего объявления?

    Оставьте заявку, и наши риэлторы подберут квартиру в новостройке в районе Рязани

    (0)