Россия, Рязанская область, Рязань, Еврокласс жилой комплекс

Реализация объекта недвижимости приостановлена

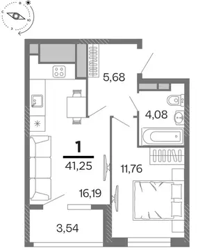
Информация о квартире

44.0 м2
Площадь
16.0 м2
Жилая
14.0 м2
Кухня
1
Комната
4
Этаж
25
Этажность

Дополнительная информация

Тип дома
монолит
Развернуть

1-к кв. Рязанская область, Рязань Еврокласс жилой комплекс (44.1 м)

Квартира 254, 1-комнатная в ЖК Еврокласс-5 от компании Зеленый сад . Район — Кальное, ул. Быстрецкая. Купите квартиру в новостройке в Рязани: 44.1 кв.м., 4 этаж. Кухня — 14.4 кв.м. Ипотека, Trade-In. Подробности на нашем сайте

Читать полностью

    Реализация объекта недвижимости приостановлена

    Не нашли подходящего объявления?

    Оставьте заявку, и наши риэлторы подберут квартиру в новостройке в районе Рязани

    (0)