3 287 650 Р 40 600 $ или 34 760

Информация о квартире

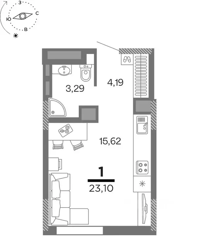
23 м2
Площадь
15 м2
Жилая
1
Комната
8
Этаж
25
Этажность
Развернуть
Агент
+7 (933) 021-24-80
Начать чат с агентом

1-к кв. Рязанская область, Рязань Метропарк тер., Метропарк жилой ...

Жилой комплекс Метропарк 4 - это место для тех, кто ценит качество жизни и заботится о своем здоровье. Одним из главных достоинств этого жилого комплекса является его комплексное озеленение и благоустройство берега реки. Все это создает прекрасную атмосферу для отдыха и релаксации, а также идеальные условия для занятий спортом и активного отдыха.ИНФРАСТРУКТУРАНа территории комплекса планируется строительство уникальной школы Лидер , где ваш ребенок сможет получить качественное образование мирового уровня и раскрыть свой творческий потенциал. Школа предлагает доступную образовательную среду, которая позволяет каждому ребенку реализовать свои увлечения и интересы.В пешей доступности:Медицинские центры и Городская больница 10Торгово-развлекательный центр Премьер АвтовокзалЕдинственная в Рязанской области Академия единоборствФутбольный манежОстановки общественного транспортаЗапланировано строительство школы и детских садовДВОРОВАЯ ТЕРРИТОРИЯВы можете начать свое утро с пробежки по набережной, насладиться свежим воздухом и красотой природы. Здесь вы найдете детские и спортивные площадки, где вашим детям всегда будет безопасно и комфортно играть и развиваться.На территории комплекса предусмотрена наземная открытая парковка, которая обеспечит удобство подъезда к дому.ВНЕШНЯЯ И ВНУТРЕННЯЯ ОТДЕЛКАКвартиры в Метропарк 4 выполнены из высококачественных материалов, которые обеспечивают комфорт и уют в любое время года. Мы используем поризованные керамические блоки для возведения наружных стен, что гарантирует долговечность и прочность. Внутренняя отделка общих помещений спроектирована по индивидуальному дизайн-проекту, что позволяет создать уникальный интерьер, соответствующий вашим потребностям и желаниям.

Читать полностью
    Позвонить Написать
    3 287 650 Р40 600 $ или 34 760
    Агент
    +7 (933) 021-24-80
    Начать чат с агентом
    Похожие предложения в Рязани
    1-к кв. Рязанская область, Рязань Братиславский мкр, Вместе жилой ... - Фото 1
    1-к кв. Рязанская область, Рязань Братиславский мкр, Вместе жилой ... - Фото 2
    1-комнатная квартира, общая площадь 28м², жилая 19м²

    - электропроводка на медном кабеле 220 V с установкой электрического щита на лестничной площадке и распределительного щита в квартире;- штукатурка кирпичных стен, кроме стен лоджий, откосов дверных и оконных проемов, ниш прохождения стояков водопровода...
    • 28 м²
    • 1-ком
    • 14/25 эт.
    3 202 420 Р
    Агент
    +7 (933) Показать номер
    Посмотреть контакты
    1-к кв. Рязанская область, Рязань Метропарк тер., Метропарк жилой ... - Фото 1
    1-к кв. Рязанская область, Рязань Метропарк тер., Метропарк жилой ... - Фото 2
    1-комнатная квартира, общая площадь 25м², жилая 15м²

    Современный и стильный жилой квартал Метропаркасположен в уникальной природной зоне поймы реки Трубеж в Московском районе города Рязани. Он занимает площадь 40га. Преимуществами ЖК Метропарк являются собственный парк 20га, набережная, развитая инфраструктура,...
    • 25 м²
    • 1-ком
    • 13/22 эт.
    3 360 415 Р
    Агент
    +7 (933) Показать номер
    Посмотреть контакты
    1-к кв. Рязанская область, Рязань Метропарк тер., Метропарк жилой ... - Фото 1
    1-к кв. Рязанская область, Рязань Метропарк тер., Метропарк жилой ... - Фото 2
    1-комнатная квартира, общая площадь 25м², жилая 15м²

    Современный и стильный жилой квартал Метропаркасположен в уникальной природной зоне поймы реки Трубеж в Московском районе города Рязани. Он занимает площадь 40га. Преимуществами ЖК Метропарк являются собственный парк 20га, набережная, развитая инфраструктура,...
    • 25 м²
    • 1-ком
    • 12/22 эт.
    3 360 415 Р
    Агент
    +7 (933) Показать номер
    Посмотреть контакты
    1-к кв. Рязанская область, Рязань Метропарк тер., Метропарк жилой ... - Фото 1
    1-к кв. Рязанская область, Рязань Метропарк тер., Метропарк жилой ... - Фото 2
    1-комнатная квартира, общая площадь 25м², жилая 15м²

    Современный и стильный жилой квартал Метропаркасположен в уникальной природной зоне поймы реки Трубеж в Московском районе города Рязани. Он занимает площадь 40га. Преимуществами ЖК Метропарк являются собственный парк 20га, набережная, развитая инфраструктура,...
    • 25 м²
    • 1-ком
    • 14/22 эт.
    3 360 415 Р
    Агент
    +7 (933) Показать номер
    Посмотреть контакты
    1-к кв. Рязанская область, Рязань Бирюзова Парк жилой комплекс (29.1 ... - Фото 1
    1-к кв. Рязанская область, Рязань Бирюзова Парк жилой комплекс (29.1 ... - Фото 2
    1-комнатная квартира, общая площадь 29м², жилая 9м²

    Продаётся 1-комнатная квартира в строящемся доме (Дом 4), срок сдачи: IV-кв. 2029, общей площадью 29.1 кв.м., на 2 этаже. Новый современный жилой комплекс комфорт-класса с прилегающей парковой территорией и уникальной архитектурой. Жилой комплекс гармонирует...
    • 29 м²
    • 1-ком
    • 2/15 эт.
    • кирпичный
    3 335 401 Р
    Агент
    +7 (933) Показать номер
    Посмотреть контакты

    Не нашли подходящего объявления?

    Оставьте заявку, и наши риэлторы подберут квартиру в новостройке в районе Рязани

    (0)