4 485 195 Р 57 330 $ или 49 390

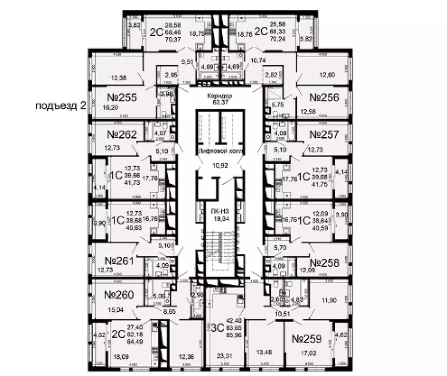
Информация о квартире

38 м2
Площадь
12 м2
Жилая
16 м2
Кухня
1
Комната
16
Этаж
26
Этажность
Развернуть
Агент
+7 (933) 021-22-56
Начать чат с агентом

1-к кв. Рязанская область, Рязань Льговская ул., 8 (38.64 м)

- электропроводка на негорючем медном кабеле 220 V с установкой электрического щита с электронными приборами учета на лестничной площадке и распределительного щита в квартире;- штукатурка кирпичных стен, кроме откосов дверных и оконных проемов, ниш прохождения стояков водопровода и канализации, экрана ограждений лоджий; - стяжка пола;- шумоизоляция пола;- индивидуальная (поквартирная) система отопления и горячего водоснабжения (газовый котел, газовый счетчик, элементы дымоходов, шаровые краны, разводка полиэтиленовой трубой, приборы отопления);- смонтирована система теплый пол в санузле и ванной комнате, в коридоре у входной двери;- смонтированы внутриквартирные стояки холодного водоснабжения (с установкой приборов учета) и водоотведения (канализация). Разводка труб водоснабжения и водоотведения (канализация) до сантехнических приборов не производится, сантехнические приборы: унитаз, ванна, мойка, раковина и полотенцесушка не устанавливаются;- вентиляционный приточный клапан (ВПК);- оконные проемы без выхода на лоджию остеклены ПВХ-профилем с отливом и подоконником; оконные проемы с выходом на лоджию остеклены ПВХ-профилем без отлива, лоджии остеклены ПВХ профилем без установки подоконника, москитные сетки не предусмотрены, места запенивания монтажной пеной и укрывания гидроизоляционным герметиком не штукатурятся; - установлена входная металлическая дверь;- установлен домофон;- обеспечен доступ для подключения к телевизионному вещанию, интернету, телефонной линии (точка подключения-щит слаботочного оборудования, расположенный на лестничной площадке).

Читать полностью
    Позвонить Написать
    4 485 195 Р57 330 $ или 49 390
    Агент
    +7 (933) 021-22-56
    Начать чат с агентом
    Похожие предложения в Рязани
    1-к кв. Рязанская область, Рязань Льговская ул., 8 (38.62 м) - Фото 1
    1-к кв. Рязанская область, Рязань Льговская ул., 8 (38.62 м) - Фото 2
    1-комнатная квартира, общая площадь 38м², жилая 12м², кухня 16м²

    - электропроводка на негорючем медном кабеле 220 V с установкой электрического щита с электронными приборами учета на лестничной площадке и распределительного щита в квартире;- штукатурка кирпичных стен, кроме откосов дверных и оконных проемов, ниш прохождения...
    • 38 м²
    • 1-ком
    • 1/26 эт.
    4 482 985 Р
    Агент
    +7 (933) Показать номер
    Посмотреть контакты
    1-к кв. Рязанская область, Рязань Льговская ул., 8 (38.64 м) - Фото 1
    1-к кв. Рязанская область, Рязань Льговская ул., 8 (38.64 м) - Фото 2
    1-комнатная квартира, общая площадь 38м², жилая 12м², кухня 16м²

    - электропроводка на негорючем медном кабеле 220 V с установкой электрического щита с электронными приборами учета на лестничной площадке и распределительного щита в квартире;- штукатурка кирпичных стен, кроме откосов дверных и оконных проемов, ниш прохождения...
    • 38 м²
    • 1-ком
    • 18/26 эт.
    4 485 195 Р
    Агент
    +7 (933) Показать номер
    Посмотреть контакты
    1-к кв. Рязанская область, Рязань Льговская ул., 8 (38.64 м) - Фото 1
    1-к кв. Рязанская область, Рязань Льговская ул., 8 (38.64 м) - Фото 2
    1-комнатная квартира, общая площадь 38м², жилая 12м², кухня 16м²

    - электропроводка на негорючем медном кабеле 220 V с установкой электрического щита с электронными приборами учета на лестничной площадке и распределительного щита в квартире;- штукатурка кирпичных стен, кроме откосов дверных и оконных проемов, ниш прохождения...
    • 38 м²
    • 1-ком
    • 1/26 эт.
    4 485 195 Р
    Агент
    +7 (933) Показать номер
    Посмотреть контакты
    1-к кв. Рязанская область, Рязань Льговская ул., 8 (38.64 м) - Фото 1
    1-к кв. Рязанская область, Рязань Льговская ул., 8 (38.64 м) - Фото 2
    1-комнатная квартира, общая площадь 38м², жилая 12м², кухня 16м²

    - электропроводка на негорючем медном кабеле 220 V с установкой электрического щита с электронными приборами учета на лестничной площадке и распределительного щита в квартире;- штукатурка кирпичных стен, кроме откосов дверных и оконных проемов, ниш прохождения...
    • 38 м²
    • 1-ком
    • 25/26 эт.
    4 485 195 Р
    Агент
    +7 (933) Показать номер
    Посмотреть контакты
    1-к кв. Рязанская область, Рязань Льговская ул., 8 (38.64 м) - Фото 1
    1-к кв. Рязанская область, Рязань Льговская ул., 8 (38.64 м) - Фото 2
    1-комнатная квартира, общая площадь 38м², жилая 12м², кухня 16м²

    - электропроводка на негорючем медном кабеле 220 V с установкой электрического щита с электронными приборами учета на лестничной площадке и распределительного щита в квартире;- штукатурка кирпичных стен, кроме откосов дверных и оконных проемов, ниш прохождения...
    • 38 м²
    • 1-ком
    • 24/26 эт.
    4 485 195 Р
    Агент
    +7 (933) Показать номер
    Посмотреть контакты

    Не нашли подходящего объявления?

    Оставьте заявку, и наши риэлторы подберут квартиру в новостройке в районе Рязани

    (0)