Россия, Рязанская область, Рязань, Аура жилой комплекс
8 406 200 Р 107 500 $ или 92 560

Информация о квартире

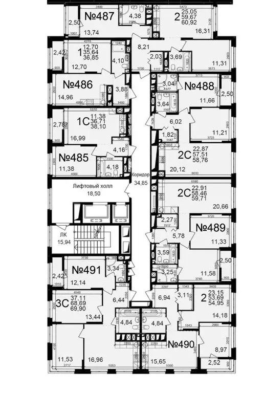
75 м2
Площадь
37 м2
Жилая
18 м2
Кухня
3
Комнаты
3
Этаж
25
Этажность
Развернуть
Агент
+7 (933) 021-28-74
Начать чат с агентом

3-к кв. Рязанская область, Рязань Аура жилой комплекс (75.01 м)

- электропроводка на медном кабеле 220 V с установкой электрического щита на лестничной площадке и распределительного щита в квартире;- штукатурка кирпичных стен, кроме стен лоджий, откосов дверных и оконных проемов, ниш прохождения стояков водопровода и канализации. Участки монолитных конструкций не штукатурятся;- стяжка пола;- шумоизоляция пола;- система отопления и горячего водоснабжения от крышной котельной с установкой прибора учета расхода тепла;- установлены приборы (радиаторы)отопления;- установлена силовая электрическая розетка для самостоятельной установки Участником электрической плиты;- смонтированы внутриквартирные стояки холодного, горячего водоснабжения и водоотведения (канализация) с установкой приборов учета. Разводка труб водоснабжения и водоотведения (канализация) до сантехнических приборов не производится, сантехнические приборы: унитаз, ванна, мойка, раковина- не устанавливаются;- установлена электрическая розетка для подключения полотенцесушки. Полотенцесушка не устанавливается;- оконные проемы без выхода на лоджии остеклены ПВХ-профилем с отливом без подоконников; оконные проемы с выходом на лоджии остеклены ПВХ-профилем, без отлива без подоконника; лоджии остеклены, москитные сетки не предусмотрены, места запенивания монтажной пеной и укрывания гидроизоляционным герметиком не штукатурятся;- установлена входная металлическая дверь;- установлен домофон, обеспечен доступ для подключения к телевизионному вещанию, интернету и телефонной линии.

Читать полностью
    Позвонить Написать
    8 406 200 Р107 500 $ или 92 560
    Агент
    +7 (933) 021-28-74
    Начать чат с агентом
    Похожие предложения в Рязани
    3-к кв. Рязанская область, Рязань ул. Чкалова (68.69 м) - Фото 1
    3-к кв. Рязанская область, Рязань ул. Чкалова (68.69 м) - Фото 2
    3-комнатная квартира, общая площадь 68м², жилая 37м², кухня 17м²

    - электропроводка на медном кабеле 220 V с установкой электрического щита на лестничной площадке и распределительного щита в квартире;- штукатурка кирпичных стен, кроме стен лоджий, откосов дверных и оконных проемов, ниш прохождения стояков водопровода...
    • 68 м²
    • 3-ком
    • 21/25 эт.
    8 457 900 Р
    Агент
    +7 (938) Показать номер
    Посмотреть контакты
    3-к кв. Рязанская область, Рязань ул. Чкалова (68.69 м) - Фото 1
    3-к кв. Рязанская область, Рязань ул. Чкалова (68.69 м) - Фото 2
    3-комнатная квартира, общая площадь 68м², жилая 37м², кухня 17м²

    - электропроводка на медном кабеле 220 V с установкой электрического щита на лестничной площадке и распределительного щита в квартире;- штукатурка кирпичных стен, кроме стен лоджий, откосов дверных и оконных проемов, ниш прохождения стояков водопровода...
    • 68 м²
    • 3-ком
    • 22/25 эт.
    8 457 900 Р
    Агент
    +7 (938) Показать номер
    Посмотреть контакты
    3-к кв. Рязанская область, Рязань ул. Чкалова (68.69 м) - Фото 1
    3-к кв. Рязанская область, Рязань ул. Чкалова (68.69 м) - Фото 2
    3-комнатная квартира, общая площадь 68м², жилая 37м², кухня 17м²

    - электропроводка на медном кабеле 220 V с установкой электрического щита на лестничной площадке и распределительного щита в квартире;- штукатурка кирпичных стен, кроме стен лоджий, откосов дверных и оконных проемов, ниш прохождения стояков водопровода...
    • 68 м²
    • 3-ком
    • 23/25 эт.
    8 457 900 Р
    Агент
    +7 (938) Показать номер
    Посмотреть контакты
    3-к кв. Рязанская область, Рязань ул. Чкалова (68.69 м) - Фото 1
    3-к кв. Рязанская область, Рязань ул. Чкалова (68.69 м) - Фото 2
    3-комнатная квартира, общая площадь 68м², жилая 37м², кухня 17м²

    - электропроводка на медном кабеле 220 V с установкой электрического щита на лестничной площадке и распределительного щита в квартире;- штукатурка кирпичных стен, кроме стен лоджий, откосов дверных и оконных проемов, ниш прохождения стояков водопровода...
    • 68 м²
    • 3-ком
    • 19/25 эт.
    8 457 900 Р
    Агент
    +7 (938) Показать номер
    Посмотреть контакты
    3-к кв. Рязанская область, Рязань ул. Чкалова (68.69 м) - Фото 1
    3-к кв. Рязанская область, Рязань ул. Чкалова (68.69 м) - Фото 2
    3-комнатная квартира, общая площадь 68м², жилая 37м², кухня 17м²

    - электропроводка на медном кабеле 220 V с установкой электрического щита на лестничной площадке и распределительного щита в квартире;- штукатурка кирпичных стен, кроме стен лоджий, откосов дверных и оконных проемов, ниш прохождения стояков водопровода...
    • 68 м²
    • 3-ком
    • 20/25 эт.
    8 457 900 Р
    Агент
    +7 (938) Показать номер
    Посмотреть контакты

    Не нашли подходящего объявления?

    Оставьте заявку, и наши риэлторы подберут квартиру в новостройке в районе Рязани

    (0)